Sélection
0
ADHÉRER À LA FNAIM GRAND PARIS Extranet
Fnaim-75
  • Accueil
  • Qui sommes-nous
    • Qui sommes-nous?
    • Etudes économiques
    • Formations
    • Conseils juridiques
  • Vos outils
    • FNAIM Légal by Modelo
    • Hub FNAIM
    • Extranet FNAIM Grand Paris
    • Centrale d'achat
    • Baromètre des prix
    • Observatoire des loyers
    • ImmoCV
  • Partenaires
  • Actualités
    • Évènements
    • Vidéos
    • Presse
    • Revue professions immobilières
    • Lettre votre patrimoine
    • Observatoires
    • Actualités juridiques
    • Nouveaux adhérents
  • Trouver une agence
  • Carte d'attractivité
VotreRecherche
Dans un rayon de
Budget
Entre € et €
Entre
et
Min. €
Max. €
Surface
Entre m2 et m2
Min. m2
Max. m2
Pièces
Entre pièces et pièces
Min. pièces
Max. pièces
  1. Accueil
  2. Le Blanc Mesnil
  3. 1 Pièce - 29m²
< Retour

Appartement
1 Pièce 29 m²

Le Blanc Mesnil - 93150

550 €
Charges comprises
Descriptif du bien
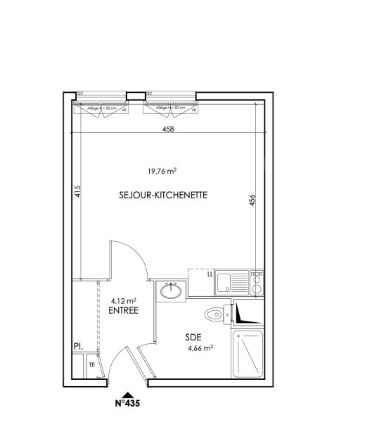
Avenue Charles de Gaulle au Blanc Mesnil. A 9 minutes de bus du RER B - Drancy. Dans un immeuble récent de 2021, un studio au 3ème étage comprenant une entrée avec placard, une pièce principale avec coin cuisine aménagée (plaque de cuisson, réfrigérateur, machine à laver), une salle d'eau avec douche et un wc. Chauffage et eau chaude : collectifs Chauffage collectif et eau chaude compris les charges. Loyer: 550€ (490€ plus 60€). Dépôt de garantie: 490€ Honoraires d'agence: 371.02€ TTC Logement soumis à défiscalisation Pinel. Visite après avoir transmis le dossier complet. Loyer de base 490 €/mois. Provision sur charges 60 €/mois, régularisation annuelle. Dépôt de garantie 490 €. Classe énergie C, Classe climat C Montant moyen estimé des dépenses annuelles d'énergie pour un usage standard, établi à partir des prix de l'énergie de l'année 2021 : entre 231.00 et 313.00 €. Les informations sur les risques auxquels ce bien est exposé sont disponibles sur le site Géorisques : georisques.gouv.fr.
Détails du bien
  • Superficie (m²) 29
  • Code postal 93150
  • Nombre de pièces 1
  • Charges 60 €
Diagnostic de
performances énergétiques
DPE
GES
Ce bien est proposé par
LOULIMMO
LOULIMMO
Créer mon dossier de location Avec
Voir les biens de l'agence
101 Rue De Sèvres
75006 Paris 06
06 1 1 54 3 4 98
agence.loulimmo@gmail.com
www.loulimmo.com
Nos outils
Nous contacter pour ce bien

* champs obligatoire

Les informations communiquées sont destinées à "La Chambre FNAIM du Grand Paris" éditrice de ce site. Vous bénéficiez d'un droit d'accès, de modification, de rectification et de suppression de vos données personnelles (Loi n°2004-575 du 21 juin 2004 pour la confiance dans l'économie numérique). Pour les exercer, adressez vous à l’adresse de l’Editeur.

Partager ce
bien
Partager ce
bien

* champs obligatoire

Les informations communiquées sont destinées à "La Chambre FNAIM du Grand Paris" éditrice de ce site. Vous bénéficiez d'un droit d'accès, de modification, de rectification et de suppression de vos données personnelles (Loi n°2004-575 du 21 juin 2004 pour la confiance dans l'économie numérique). Pour les exercer, adressez vous à l’adresse de l’Editeur.

Calculatrice financière
Mensualités :

* Champs obligatoires

Ces biens
peuvent vous intéresser

  • Location
    Appartement
    93150 le blanc mesnil
    920 €
  • Location
    Appartement
    93150 le blanc mesnil
    545 €
  • Location
    Appartement
    93150 le blanc mesnil
    900 €
Fnaim-
  • Contact
  • Partenaires
  • IMMOCV
  • Liens utiles
EXTRANET Déposer un avis

© 2026 | Tous droits réservés |

  • Plan du site
  • Mentions légales
  • Partenaires
  • Contact
  • Contact DPO
27bis, avenue de Villiers, 75017 PARIS
Réalisé par

Comme beaucoup, notre site utilise les cookies

On aimerait vous accompagner pendant votre visite. En poursuivant, vous acceptez l'utilisation des cookies par ce site, afin de vous proposer des contenus adaptés et réaliser des statistiques !

Paramétrer

Cookies fonctionnelsCes cookies sont indispensables à la navigation sur le site, pour vous garantir un fonctionnement optimal. Ils ne peuvent donc pas être désactivés.

Statistiques de visitesPour améliorer votre expérience, on a besoin de savoir ce qui vous intéresse !
Les données récoltées sont anonymisées.

?

Google Analytics

Annonces personnaliséesOn garde le contact ? Ces cookies nous permettent de vous proposer des contenus publicitaires adaptés à vos centres d'intérêts.

?

Google Ads

?

Facebook Pixel

?

Youtube

En savoir plus