Sélection
0
ADHÉRER À LA FNAIM GRAND PARIS Extranet
Fnaim-75
  • Accueil
  • Qui sommes-nous
    • Qui sommes-nous?
    • Etudes économiques
    • Formations
    • Conseils juridiques
  • Vos outils
    • FNAIM Légal by Modelo
    • Hub FNAIM
    • Extranet FNAIM Grand Paris
    • Centrale d'achat
    • Baromètre des prix
    • Observatoire des loyers
    • ImmoCV
  • Partenaires
  • Actualités
    • Évènements
    • Vidéos
    • Presse
    • Revue professions immobilières
    • Lettre votre patrimoine
    • Observatoires
    • Actualités juridiques
    • Nouveaux adhérents
  • Trouver une agence
  • Carte d'attractivité
VotreRecherche
Dans un rayon de
Budget
Entre € et €
Entre
et
Min. €
Max. €
Surface
Entre m2 et m2
Min. m2
Max. m2
Pièces
Entre pièces et pièces
Min. pièces
Max. pièces
  1. Accueil
  2. Rueil Malmaison
  3. 2 Pièces - 43m²
< Retour

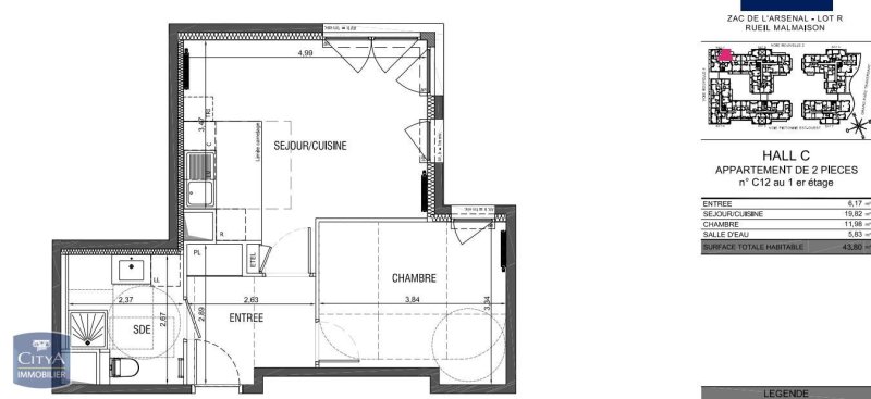
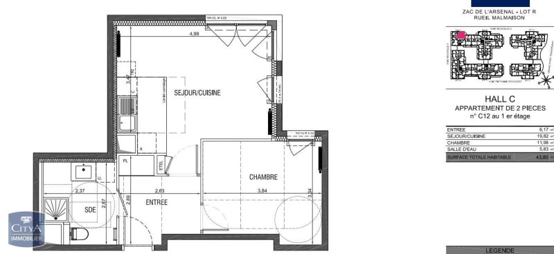
Appartement
2 Pièces 43 m²

Rueil Malmaison - 92500

1 131 €
Charges comprises
Descriptif du bien
À LOUER : Appartement T2 à Rueil-Malmaison, 92500 Découvrez cet appartement T2 idéalement situé au cœur de Rueil-Malmaison, offrant un cadre de vie agréable et pratique. Avec une superficie de 43.8 m², cet espace est parfait pour un couple ou une personne seule à la recherche de confort et de commodité. L'appartement se compose d'une entrée avec placard, un séjour avec cuisine, une chambre et une salle d'eau avec WC. Chauffage et eau chaude collectifs. Une place de parking complète ce bien. Gardien dans la résidence. À proximité, vous trouverez de nombreux commerces et services. À moins de 500 mètres, plusieurs supermarchés tels que Carrefour Market et So.bio vous permettront de faire vos courses facilement. Les familles apprécieront également la proximité d'écoles, avec l'École Élementaire des Bons Raisins et le Lycée polyvalent Gustave Eiffel à quelques pas. Cet appartement T2 à Rueil-Malmaison est une opportunité à ne pas manquer pour ceux qui recherchent un cadre de vie agréable, alliant confort et praticité. N'hésitez pas à nous contacter pour plus d'informations ou pour organiser une visite. Le bien est soumis au statut de la copropriété. Loyer de 1 131,08 euros par mois charges comprises dont 130,00 euros par mois de provision pour charges (soumis à la régularisation annuelle). Soit avec Assurance Habitation et Assistance* ( 21.00 euros ) : 1 152,08 euros. Les honoraires charge locataire sont de 662,69 euros ( soit 15,13 euros/m² ) dont 132,71 euros pour état des lieux ( soit 3,03 euros/m² ). Vous pouvez consulter les barèmes d'honoraires à l'adresse suivante : https://www.citya.com/agences-immobilieres/paris-8e-arrondissement-75008/333#bareme-location Montant estimé des dépenses annuelles d'énergie pour un usage standard : entre 1 692 et 2 289 euros. Prix moyens des énergies indexés en 2021. Les informations sur les risques auxquels ce bien est exposé sont disponibles sur le site Géorisques : https://www.georisques.gouv.fr. *Service facultatif. Contribution annuelle "attentats" non comprise. Voir conditions en agence.
Détails du bien
  • Superficie (m²) 43
  • Code postal 92500
  • Nombre de chambre(s) 1
  • Nombre de pièces 2
  • Charges 130 €
Diagnostic de
performances énergétiques
DPE
GES
Ce bien est proposé par
CITYA MANSART PROPERTY MANAGEMENT
CITYA MANSART PROPERTY MANAGEMENT
Créer mon dossier de location Avec
Voir les biens de l'agence
35, Rue De Rome
75008 Paris 08
01 4 4 70 2 1 10
clurati-charbon@citya.com
www.citya.com
Nos outils
Nous contacter pour ce bien

* champs obligatoire

Les informations communiquées sont destinées à "La Chambre FNAIM du Grand Paris" éditrice de ce site. Vous bénéficiez d'un droit d'accès, de modification, de rectification et de suppression de vos données personnelles (Loi n°2004-575 du 21 juin 2004 pour la confiance dans l'économie numérique). Pour les exercer, adressez vous à l’adresse de l’Editeur.

Partager ce
bien
Partager ce
bien

* champs obligatoire

Les informations communiquées sont destinées à "La Chambre FNAIM du Grand Paris" éditrice de ce site. Vous bénéficiez d'un droit d'accès, de modification, de rectification et de suppression de vos données personnelles (Loi n°2004-575 du 21 juin 2004 pour la confiance dans l'économie numérique). Pour les exercer, adressez vous à l’adresse de l’Editeur.

Calculatrice financière
Mensualités :

* Champs obligatoires

Ces biens
peuvent vous intéresser

  • Location
    Appartement
    92500 rueil malmaison
    917 €
  • Location
    Appartement
    92500 rueil malmaison
    1 695 €
  • Location
    Appartement
    92500 rueil malmaison
    849 €
Fnaim-
  • Contact
  • Partenaires
  • IMMOCV
  • Liens utiles
EXTRANET Déposer un avis

© 2026 | Tous droits réservés |

  • Plan du site
  • Mentions légales
  • Partenaires
  • Contact
  • Contact DPO
27bis, avenue de Villiers, 75017 PARIS
Réalisé par

Comme beaucoup, notre site utilise les cookies

On aimerait vous accompagner pendant votre visite. En poursuivant, vous acceptez l'utilisation des cookies par ce site, afin de vous proposer des contenus adaptés et réaliser des statistiques !

Paramétrer

Cookies fonctionnelsCes cookies sont indispensables à la navigation sur le site, pour vous garantir un fonctionnement optimal. Ils ne peuvent donc pas être désactivés.

Statistiques de visitesPour améliorer votre expérience, on a besoin de savoir ce qui vous intéresse !
Les données récoltées sont anonymisées.

?

Google Analytics

Annonces personnaliséesOn garde le contact ? Ces cookies nous permettent de vous proposer des contenus publicitaires adaptés à vos centres d'intérêts.

?

Google Ads

?

Facebook Pixel

?

Youtube

En savoir plus