Sélection
0
ADHÉRER À LA FNAIM GRAND PARIS Extranet
Fnaim-75
  • Accueil
  • Qui sommes-nous
    • Qui sommes-nous?
    • Etudes économiques
    • Formations
    • Conseils juridiques
  • Vos outils
    • FNAIM Légal by Modelo
    • Hub FNAIM
    • Extranet FNAIM Grand Paris
    • Centrale d'achat
    • Baromètre des prix
    • Observatoire des loyers
    • ImmoCV
  • Partenaires
  • Actualités
    • Évènements
    • Vidéos
    • Presse
    • Revue professions immobilières
    • Lettre votre patrimoine
    • Observatoires
    • Actualités juridiques
    • Nouveaux adhérents
  • Trouver une agence
  • Carte d'attractivité
VotreRecherche
Dans un rayon de
Budget
Entre € et €
Entre
et
Min. €
Max. €
Surface
Entre m2 et m2
Min. m2
Max. m2
Pièces
Entre pièces et pièces
Min. pièces
Max. pièces
  1. Accueil
  2. St Maur Des Fosses
  3. 2 Pièces - 33m²
< Retour

Appartement
2 Pièces 33 m²

St Maur Des Fosses - 94100

890 €
Charges comprises
Descriptif du bien
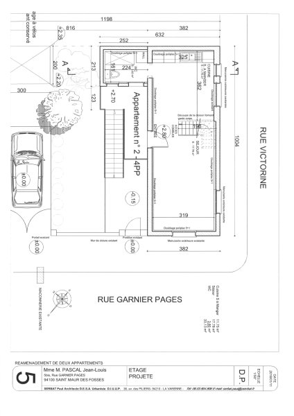
Situé au 5 bis rue Garnier Pagès , dans petit ensemble immobilier composé de 2 appartements, un appartement 2 pièces au rez de chaussée comprenant : une pièce principale, une cuisine ouverte aménagée avec plaque de cuisson et hotte , une salle d'eau avec cabine de douche, une chambre et un wc. .En annexe, un cabanon et une place de parking extérieure. Rénovation récente. DPE=E. Libre de suite. Visites Isabelle AOUIZERATE 06 68 03 64 64
Détails du bien
  • Superficie (m²) 33
  • Code postal 94100
  • Nombre de chambre(s) 1
  • Nombre de pièces 2
  • Charges 30 €
Diagnostic de
performances énergétiques
DPE
GES
Ce bien est proposé par
CABINET GUERIN FPG
CABINET GUERIN FPG
Créer mon dossier de location Avec
Voir les biens de l'agence
40 Avenue Foch
94100 St Maur Des Fosses
01 4 8 83 8 5 51
accueil@cabinetguerin.fr
www.cabinetguerin.fr
Nos outils
Nous contacter pour ce bien

* champs obligatoire

Les informations communiquées sont destinées à "La Chambre FNAIM du Grand Paris" éditrice de ce site. Vous bénéficiez d'un droit d'accès, de modification, de rectification et de suppression de vos données personnelles (Loi n°2004-575 du 21 juin 2004 pour la confiance dans l'économie numérique). Pour les exercer, adressez vous à l’adresse de l’Editeur.

Partager ce
bien
Partager ce
bien

* champs obligatoire

Les informations communiquées sont destinées à "La Chambre FNAIM du Grand Paris" éditrice de ce site. Vous bénéficiez d'un droit d'accès, de modification, de rectification et de suppression de vos données personnelles (Loi n°2004-575 du 21 juin 2004 pour la confiance dans l'économie numérique). Pour les exercer, adressez vous à l’adresse de l’Editeur.

Calculatrice financière
Mensualités :

* Champs obligatoires

Ces biens
peuvent vous intéresser

  • Location
    Appartement
    94100 st maur des fosses
    750 €
  • Location
    Appartement
    94100 st maur des fosses
    599 €
  • Location
    Appartement
    94100 st maur des fosses
    1 061 €
Fnaim-
  • Contact
  • Partenaires
  • IMMOCV
  • Liens utiles
EXTRANET Déposer un avis

© 2026 | Tous droits réservés |

  • Plan du site
  • Mentions légales
  • Partenaires
  • Contact
  • Contact DPO
27bis, avenue de Villiers, 75017 PARIS
Réalisé par

Comme beaucoup, notre site utilise les cookies

On aimerait vous accompagner pendant votre visite. En poursuivant, vous acceptez l'utilisation des cookies par ce site, afin de vous proposer des contenus adaptés et réaliser des statistiques !

Paramétrer

Cookies fonctionnelsCes cookies sont indispensables à la navigation sur le site, pour vous garantir un fonctionnement optimal. Ils ne peuvent donc pas être désactivés.

Statistiques de visitesPour améliorer votre expérience, on a besoin de savoir ce qui vous intéresse !
Les données récoltées sont anonymisées.

?

Google Analytics

Annonces personnaliséesOn garde le contact ? Ces cookies nous permettent de vous proposer des contenus publicitaires adaptés à vos centres d'intérêts.

?

Google Ads

?

Facebook Pixel

?

Youtube

En savoir plus