Sélection
0
ADHÉRER À LA FNAIM GRAND PARIS Extranet
Fnaim-75
  • Accueil
  • Qui sommes-nous
    • Qui sommes-nous?
    • Etudes économiques
    • Formations
    • Conseils juridiques
  • Vos outils
    • FNAIM Légal by Modelo
    • Hub FNAIM
    • Extranet FNAIM Grand Paris
    • Centrale d'achat
    • Baromètre des prix
    • Observatoire des loyers
    • ImmoCV
  • Partenaires
  • Actualités
    • Évènements
    • Vidéos
    • Presse
    • Revue professions immobilières
    • Lettre votre patrimoine
    • Observatoires
    • Actualités juridiques
    • Nouveaux adhérents
  • Trouver une agence
  • Carte d'attractivité
VotreRecherche
Dans un rayon de
Budget
Entre € et €
Entre
et
Min. €
Max. €
Surface
Entre m2 et m2
Min. m2
Max. m2
Pièces
Entre pièces et pièces
Min. pièces
Max. pièces
  1. Accueil
  2. Vanves
  3. 2 Pièces - 43m²
< Retour

Appartement
2 Pièces 43 m²

Vanves - 92170

1 290 €
Charges comprises
Descriptif du bien
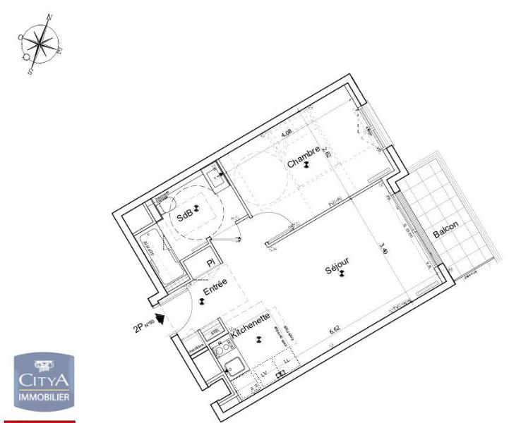
EXCLUSIVITÉ - APPARTEMENT 2 PIÈCES AVEC BALCON ET BOX A saisir : découvrez cet appartement T2 de 43,1 m², situé dans une résidence neuve sis Rue du Clos Montholon à VANVES (92170), proche de la future ligne 15 et de la gare SNCF qui relie Paris - Montparnasse en 8 min. Il est situé au 2ème étage surélevé. Cet appartement propose une cuisine ouverte sur la pièce à vivre, une chambre, une salle de bains avec wc et placard, et un balcon. Pour vos véhicules, l'appartement est loué avec une place de parking. L'appartement se situe dans le quartier de Hauts-de-Vanves. Tous les types d'écoles (de la maternelle au lycée) se trouvent à moins de 10 minutes du bien. Niveau transports en commun, il y a une gare à quelques pas de l'appartement. Il y 5 lignes de bus autour de l'appartement (59, 169, 394, 323, 194). On trouve de nombreux restaurants et trois bureaux de poste à proximité. Enfin 2 marchés animent le quartier. Découvrez toutes les originalités de cet appartement à louer en prenant RDV avec votre agence Citya Immobilier Catalogne. Le bien est soumis au statut de la copropriété. Loyer de 1 290,00 euros par mois charges comprises dont 60,00 euros par mois de provision pour charges (soumis à la régularisation annuelle). Soit avec Assurance Habitation et Assistance* ( 21.00 euros ) : 1 311,00 euros. Les honoraires charge locataire sont de 652,10 euros ( soit 15,13 euros/m² ) dont 130,59 euros pour état des lieux ( soit 3,03 euros/m² ). Vous pouvez consulter les barèmes d'honoraires à l'adresse suivante : https://www.citya.com/agences-immobilieres/paris-15e-arrondissement-75015/165#bareme-location Montant estimé des dépenses annuelles d'énergie pour un usage standard : entre 420 et 670 euros. Prix moyens des énergies indexés en 2021. Les informations sur les risques auxquels ce bien est exposé sont disponibles sur le site Géorisques : https://www.georisques.gouv.fr. *Service facultatif. Contribution annuelle "attentats" non comprise. Voir conditions en agence.
Détails du bien
  • Superficie (m²) 43
  • Code postal 92170
  • Nombre de pièces 2
  • Nb de salle de bain 1
  • Charges 60 €
Diagnostic de
performances énergétiques
DPE
GES
Ce bien est proposé par
CITYA IMMOBILIER TEISSIER - SABI
CITYA IMMOBILIER TEISSIER - SABI
Créer mon dossier de location Avec
Voir les biens de l'agence
68 Rue Des Cevennes
75015 Paris 15
01 4 4 26 2 2 62
teissier-sabi.contact@citya.com
www.citya.com
Nos outils
Nous contacter pour ce bien

* champs obligatoire

Les informations communiquées sont destinées à "La Chambre FNAIM du Grand Paris" éditrice de ce site. Vous bénéficiez d'un droit d'accès, de modification, de rectification et de suppression de vos données personnelles (Loi n°2004-575 du 21 juin 2004 pour la confiance dans l'économie numérique). Pour les exercer, adressez vous à l’adresse de l’Editeur.

Partager ce
bien
Partager ce
bien

* champs obligatoire

Les informations communiquées sont destinées à "La Chambre FNAIM du Grand Paris" éditrice de ce site. Vous bénéficiez d'un droit d'accès, de modification, de rectification et de suppression de vos données personnelles (Loi n°2004-575 du 21 juin 2004 pour la confiance dans l'économie numérique). Pour les exercer, adressez vous à l’adresse de l’Editeur.

Calculatrice financière
Mensualités :

* Champs obligatoires

Ces biens
peuvent vous intéresser

  • Location
    Appartement
    92170 vanves
    1 300 €
  • Location
    Appartement
    92170 vanves
    950 €
  • Location
    Appartement
    92240 malakoff
    764 €
Fnaim-
  • Contact
  • Partenaires
  • IMMOCV
  • Liens utiles
EXTRANET Déposer un avis

© 2026 | Tous droits réservés |

  • Plan du site
  • Mentions légales
  • Partenaires
  • Contact
  • Contact DPO
27bis, avenue de Villiers, 75017 PARIS
Réalisé par

Comme beaucoup, notre site utilise les cookies

On aimerait vous accompagner pendant votre visite. En poursuivant, vous acceptez l'utilisation des cookies par ce site, afin de vous proposer des contenus adaptés et réaliser des statistiques !

Paramétrer

Cookies fonctionnelsCes cookies sont indispensables à la navigation sur le site, pour vous garantir un fonctionnement optimal. Ils ne peuvent donc pas être désactivés.

Statistiques de visitesPour améliorer votre expérience, on a besoin de savoir ce qui vous intéresse !
Les données récoltées sont anonymisées.

?

Google Analytics

Annonces personnaliséesOn garde le contact ? Ces cookies nous permettent de vous proposer des contenus publicitaires adaptés à vos centres d'intérêts.

?

Google Ads

?

Facebook Pixel

?

Youtube

En savoir plus