Sélection
0
ADHÉRER À LA FNAIM GRAND PARIS Extranet
Fnaim-75
  • Accueil
  • Qui sommes-nous
    • Qui sommes-nous?
    • Etudes économiques
    • Formations
    • Conseils juridiques
  • Vos outils
    • FNAIM Légal by Modelo
    • Hub FNAIM
    • Extranet FNAIM Grand Paris
    • Centrale d'achat
    • Baromètre des prix
    • Observatoire des loyers
    • ImmoCV
  • Partenaires
  • Actualités
    • Évènements
    • Vidéos
    • Presse
    • Revue professions immobilières
    • Lettre votre patrimoine
    • Observatoires
    • Actualités juridiques
    • Nouveaux adhérents
  • Trouver une agence
  • Carte d'attractivité
VotreRecherche
Dans un rayon de
Budget
Entre € et €
Entre
et
Min. €
Max. €
Surface
Entre m2 et m2
Min. m2
Max. m2
Pièces
Entre pièces et pièces
Min. pièces
Max. pièces
  1. Accueil
  2. Dourdan
  3. 3 Pièces - 39m²
< Retour

Maison
3 Pièces 39 m²

Dourdan - 91410

890 €
Descriptif du bien
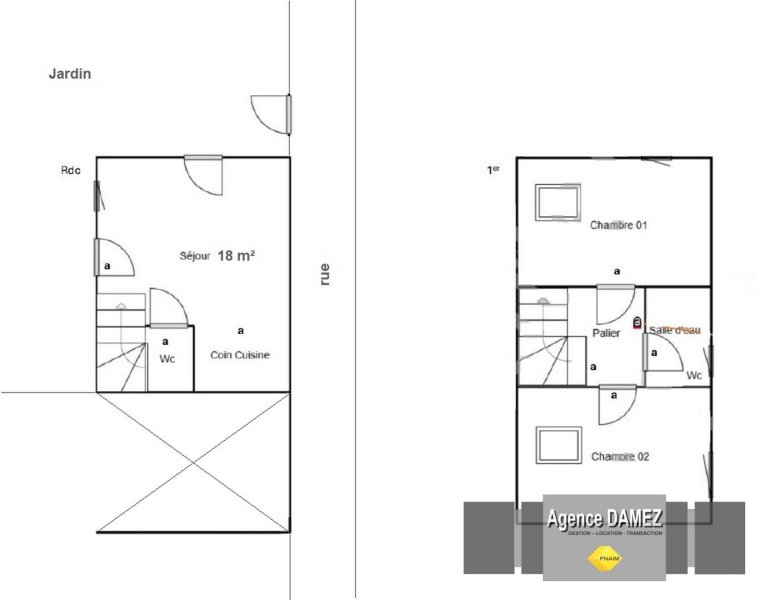
À Dourdan, tout proche centre et gare, l'Agence Damez vous propose cette charmante maisonnette individuelle avec jardinet privatif. Surface habitable 39 m² (50 m² au sol), elle se compose au rez-de-chaussée d'un séjour cuisine de 18 m², WC; A l'étage : deux chambres, salle d'eau WC. Exposée sud, belle vue dégagée. Jardin de 80 m². À noter : ce bien ne dispose pas de garage ni de stationnement privatif. Un stationnement ponctuel est possible dans la rue, devant la maison. Un parking se trouve à environ 80 mètres.
Détails du bien
  • Superficie (m²) 39
  • Code postal 91410
  • Nombre de chambre(s) 2
  • Nombre de pièces 3
Diagnostic de
performances énergétiques
DPE
GES
Ce bien est proposé par
AGENCE DAMEZ
AGENCE DAMEZ
Créer mon dossier de location Avec
Voir les biens de l'agence
15 Rue Debertrand
91410 Dourdan
01 6 4 59 5 1 63
agencedamez@orange.fr
www.agencedamezdourdan.immo
Nos outils
Nous contacter pour ce bien

* champs obligatoire

Les informations communiquées sont destinées à "La Chambre FNAIM du Grand Paris" éditrice de ce site. Vous bénéficiez d'un droit d'accès, de modification, de rectification et de suppression de vos données personnelles (Loi n°2004-575 du 21 juin 2004 pour la confiance dans l'économie numérique). Pour les exercer, adressez vous à l’adresse de l’Editeur.

Partager ce
bien
Partager ce
bien

* champs obligatoire

Les informations communiquées sont destinées à "La Chambre FNAIM du Grand Paris" éditrice de ce site. Vous bénéficiez d'un droit d'accès, de modification, de rectification et de suppression de vos données personnelles (Loi n°2004-575 du 21 juin 2004 pour la confiance dans l'économie numérique). Pour les exercer, adressez vous à l’adresse de l’Editeur.

Calculatrice financière
Mensualités :

* Champs obligatoires

Ces biens
peuvent vous intéresser

  • Location
    Maison
    91410 dourdan
    890 €
  • Location
    Maison
    91410 dourdan
    1 075 €
  • Location
    Maison
    91410 dourdan
    1 050 €
Fnaim-
  • Contact
  • Partenaires
  • IMMOCV
  • Liens utiles
EXTRANET Déposer un avis

© 2026 | Tous droits réservés |

  • Plan du site
  • Mentions légales
  • Partenaires
  • Contact
  • Contact DPO
27bis, avenue de Villiers, 75017 PARIS
Réalisé par

Comme beaucoup, notre site utilise les cookies

On aimerait vous accompagner pendant votre visite. En poursuivant, vous acceptez l'utilisation des cookies par ce site, afin de vous proposer des contenus adaptés et réaliser des statistiques !

Paramétrer

Cookies fonctionnelsCes cookies sont indispensables à la navigation sur le site, pour vous garantir un fonctionnement optimal. Ils ne peuvent donc pas être désactivés.

Statistiques de visitesPour améliorer votre expérience, on a besoin de savoir ce qui vous intéresse !
Les données récoltées sont anonymisées.

?

Google Analytics

Annonces personnaliséesOn garde le contact ? Ces cookies nous permettent de vous proposer des contenus publicitaires adaptés à vos centres d'intérêts.

?

Google Ads

?

Facebook Pixel

?

Youtube

En savoir plus