Sélection
0
ADHÉRER À LA FNAIM GRAND PARIS Extranet
Fnaim-75
  • Accueil
  • Qui sommes-nous
    • Qui sommes-nous?
    • Etudes économiques
    • Formations
    • Conseils juridiques
  • Vos outils
    • FNAIM Légal by Modelo
    • Hub FNAIM
    • Extranet FNAIM Grand Paris
    • Centrale d'achat
    • Baromètre des prix
    • Observatoire des loyers
    • ImmoCV
  • Partenaires
  • Actualités
    • Évènements
    • Vidéos
    • Presse
    • Revue professions immobilières
    • Lettre votre patrimoine
    • Observatoires
    • Actualités juridiques
    • Nouveaux adhérents
  • Trouver une agence
  • Carte d'attractivité
VotreRecherche
Dans un rayon de
Budget
Entre € et €
Entre
et
Min. €
Max. €
Surface
Entre m2 et m2
Min. m2
Max. m2
Pièces
Entre pièces et pièces
Min. pièces
Max. pièces
  1. Accueil
  2. Gennevilliers
  3. 2 Pièces - 43m²
< Retour

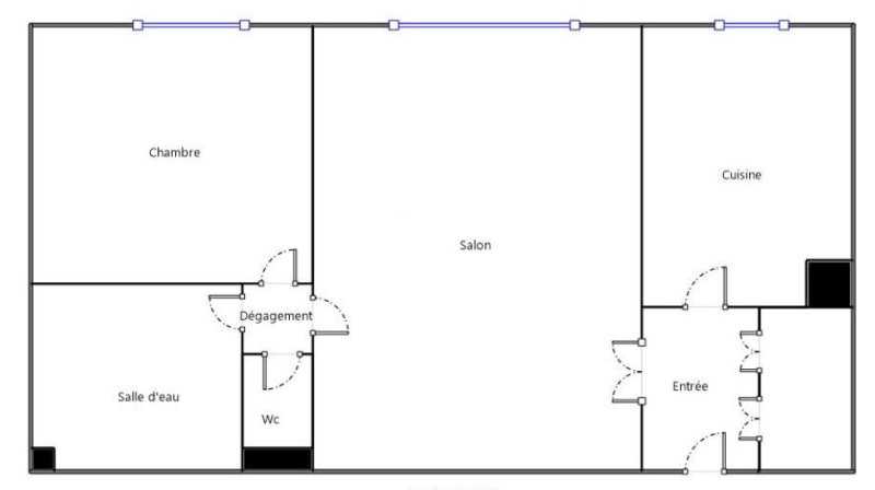
Appartement
2 Pièces 43 m²

Gennevilliers - 92230

179 000 €
Descriptif du bien
GENNEVILLIERS VILLAGE. A 5 minutes du tram et 14 minutes du métro les Courtilles (13 min Gare Saint Lazare) Dans copropriété des années fin 60 de quatre étages, l'agence LADRESSE ASNIERES vous invite à découvrir cet appartement en rez de chaussé sur cour : entrée avec placard, séjour, une chambre, une cuisine aménagée (possibilité d'ouverture sur le salon), une salle d'eau et wc. Chauffage collectif, Fenêtres PVC double vitrage avec volets, digicode. Une cave complète cette offre. Calme , absence de vis à vis, bonne luminosité autant de qualités qui rend cet appartement attractif et justifera un petit rafraichissement voir quleques travaux de modernisation sur les pièces d'eau. Enfin, dans un rayon de 10/12 min à pied de l'appartement, vous trouverez toutes les commodités : moyenne et grande surface, écoles (maternelle, primaire, collége ...) et espace verts etc...qui vous faciliteront la vie au quotidien !
Détails du bien
  • Superficie (m²) 43
  • Code postal 92230
  • Nombre de chambre(s) 1
  • Nombre de pièces 2
  • Nb de salle de bain 1
Diagnostic de
performances énergétiques
DPE
GES
Ce bien est proposé par
L'ADRESSE ASNIERES-SUR-SEINE MAIRIE
L'ADRESSE ASNIERES-SUR-SEINE MAIRIE
Voir les biens de l'agence
21 Avenue D Argenteuil
92600 Asnieres Sur Seine
01 41 32 33 34
domus.immo@orange.fr
www.ladresse-asnieres.com
Nos outils
Nous contacter pour ce bien

* champs obligatoire

Les informations communiquées sont destinées à "La Chambre FNAIM du Grand Paris" éditrice de ce site. Vous bénéficiez d'un droit d'accès, de modification, de rectification et de suppression de vos données personnelles (Loi n°2004-575 du 21 juin 2004 pour la confiance dans l'économie numérique). Pour les exercer, adressez vous à l’adresse de l’Editeur.

Partager ce
bien
Partager ce
bien

* champs obligatoire

Les informations communiquées sont destinées à "La Chambre FNAIM du Grand Paris" éditrice de ce site. Vous bénéficiez d'un droit d'accès, de modification, de rectification et de suppression de vos données personnelles (Loi n°2004-575 du 21 juin 2004 pour la confiance dans l'économie numérique). Pour les exercer, adressez vous à l’adresse de l’Editeur.

Calculatrice financière
Mensualités :

* Champs obligatoires

Ces biens
peuvent vous intéresser

  • Vente
    Appartement
    92230 gennevilliers
    390 000 €
  • Vente
    Appartement
    92230 gennevilliers
    499 500 €
  • Vente
    Appartement
    92230 gennevilliers
    365 000 €
Fnaim-
  • Contact
  • Partenaires
  • IMMOCV
  • Liens utiles
EXTRANET Déposer un avis

© 2026 | Tous droits réservés |

  • Plan du site
  • Mentions légales
  • Partenaires
  • Contact
  • Contact DPO
27bis, avenue de Villiers, 75017 PARIS
Réalisé par

Comme beaucoup, notre site utilise les cookies

On aimerait vous accompagner pendant votre visite. En poursuivant, vous acceptez l'utilisation des cookies par ce site, afin de vous proposer des contenus adaptés et réaliser des statistiques !

Paramétrer

Cookies fonctionnelsCes cookies sont indispensables à la navigation sur le site, pour vous garantir un fonctionnement optimal. Ils ne peuvent donc pas être désactivés.

Statistiques de visitesPour améliorer votre expérience, on a besoin de savoir ce qui vous intéresse !
Les données récoltées sont anonymisées.

?

Google Analytics

Annonces personnaliséesOn garde le contact ? Ces cookies nous permettent de vous proposer des contenus publicitaires adaptés à vos centres d'intérêts.

?

Google Ads

?

Facebook Pixel

?

Youtube

En savoir plus