Sélection
0
ADHÉRER À LA FNAIM GRAND PARIS Extranet
Fnaim-75
  • Accueil
  • Qui sommes-nous
    • Qui sommes-nous?
    • Etudes économiques
    • Formations
    • Conseils juridiques
  • Vos outils
    • FNAIM Légal by Modelo
    • Hub FNAIM
    • Extranet FNAIM Grand Paris
    • Centrale d'achat
    • Baromètre des prix
    • Observatoire des loyers
    • ImmoCV
  • Partenaires
  • Actualités
    • Évènements
    • Vidéos
    • Presse
    • Revue professions immobilières
    • Lettre votre patrimoine
    • Observatoires
    • Actualités juridiques
    • Nouveaux adhérents
  • Trouver une agence
  • Carte d'attractivité
VotreRecherche
Dans un rayon de
Budget
Entre € et €
Entre
et
Min. €
Max. €
Surface
Entre m2 et m2
Min. m2
Max. m2
Pièces
Entre pièces et pièces
Min. pièces
Max. pièces
  1. Accueil
  2. Asnieres Sur Seine
  3. 1 Pièce - 31m²
< Retour

Appartement
1 Pièce 31 m²

Asnieres Sur Seine - 92600

220 000 €
Descriptif du bien
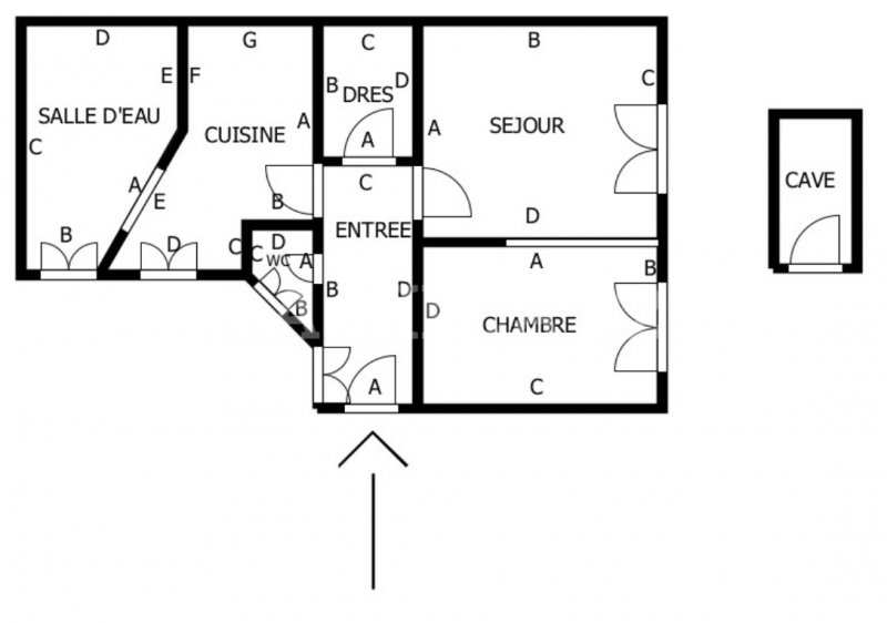
ASNIÈRES - MAIRIE - MARCHÉ - APPARTEMENT T1 ou T2 DE 31,76 M2 - CAVE - A la recherche de votre première résidence principale ou d'un investissement locatif, La Villa 92 a le plaisir de vous proposer cet appartement au sein d'une copropriété connue pour sa charmante cour intérieure. Ce bien est situé en rez-de-chaussée légèrement surélevé, dans le bâtiment donnant sur les extérieurs végétalisés. La visite des lieux commencera par une entrée dans laquelle se trouvent un débarras et des wc séparés. Puis sur la droite il y a la pièce de vie, qui peut être facilement aménagée en espace nuit et séjour, comme c'est le cas actuellement. Ce salon donne sur la cour de l'immeuble, fleurie et arborée, ce qui est particulièrement agréable. Sur la gauche de l'entrée il y a cuisine et salle d'eau. Une cave en sous-sol complète le descriptif sympathique de cette annonce. Si vous recherchez le charme de l'ancien (le parquet en point de Hongrie est vraiment très beau) ainsi que le calme tout étant en plein coeur de ville, ce bien est susceptible de vous intéresser. En effet, la proximité de la place du Marché, du Monoprix, ainsi que le choix des transports en communs (métro Gabriel Péri ou gare d'Asnières) confèrent à cet appartement de nombreux atouts si souvent recherchés. En une ou deux pièces, La Villa 92 vous accompagne également dans les propositions d'aménagement pour que tout simplement ce bien puisse correspondre parfaitement à vos attentes. Que ce soit pour votre premier achat ou un investissement locatif, La Villa 92 se fera un plaisir de vous présenter ce bien répondant à de nombreux critères tant recherchés. Acquéreurs : toutes nos transactions bénéficient GRATUITEMENT de la GARANTIE REVENTE La Villa 92, une agence pas tout à fait comme les autres, spécialiste de l'accompagnement immobilier à Asnières et dans les Hauts de Seine pour l'achat, la vente, la location et la gestion de votre bien immobilier. Ce bien est soumis au statut de la copropriété comprenant 79 lots principaux et secondaires. Le montant moyen annuel des charges pour 2024 est de 1287 €, incluant entre autre une formidable gardienne :-) Acquéreurs : toutes nos transactions bénéficient GRATUITEMENT de la GARANTIE REVENTE Les honoraires sont à la charge du vendeur (Pour consulter nos honoraires : http://www.lavilla92.fr/public/files/files/honoraires.pdf) Logement à consommation énergétique excessive en classe G. Montant estimé des dépenses annuelles d'énergie pour un usage standard entre 1050 € et 1470 €, références des prix de l'énergie utilisée en 2021. Les informations sur les risques auxquels ce bien est exposé sont disponibles sur le site géorisques : www.georisques.gouv.fr
Détails du bien
  • Superficie (m²) 31
  • Code postal 92600
  • Nombre de pièces 1
Diagnostic de
performances énergétiques
DPE
GES
Ce bien est proposé par
LA VILLA 92
LA VILLA 92
Voir les biens de l'agence
86 Avenue De La Marne
92600 Asnieres Sur Seine
01 47 33 99 53
asnieres@real31.fr
WWW.LAVILLA92.FR
Nos outils
Nous contacter pour ce bien

* champs obligatoire

Les informations communiquées sont destinées à "La Chambre FNAIM du Grand Paris" éditrice de ce site. Vous bénéficiez d'un droit d'accès, de modification, de rectification et de suppression de vos données personnelles (Loi n°2004-575 du 21 juin 2004 pour la confiance dans l'économie numérique). Pour les exercer, adressez vous à l’adresse de l’Editeur.

Partager ce
bien
Partager ce
bien

* champs obligatoire

Les informations communiquées sont destinées à "La Chambre FNAIM du Grand Paris" éditrice de ce site. Vous bénéficiez d'un droit d'accès, de modification, de rectification et de suppression de vos données personnelles (Loi n°2004-575 du 21 juin 2004 pour la confiance dans l'économie numérique). Pour les exercer, adressez vous à l’adresse de l’Editeur.

Calculatrice financière
Mensualités :

* Champs obligatoires

Ces biens
peuvent vous intéresser

  • Vente
    Appartement
    92600 asnieres sur seine
    276 000 €
  • Vente
    Appartement
    92600 asnieres sur seine
    483 000 €
  • Vente
    Appartement
    92600 asnieres sur seine
    300 000 €
Fnaim-
  • Contact
  • Partenaires
  • IMMOCV
  • Liens utiles
EXTRANET Déposer un avis

© 2026 | Tous droits réservés |

  • Plan du site
  • Mentions légales
  • Partenaires
  • Contact
  • Contact DPO
27bis, avenue de Villiers, 75017 PARIS
Réalisé par

Comme beaucoup, notre site utilise les cookies

On aimerait vous accompagner pendant votre visite. En poursuivant, vous acceptez l'utilisation des cookies par ce site, afin de vous proposer des contenus adaptés et réaliser des statistiques !

Paramétrer

Cookies fonctionnelsCes cookies sont indispensables à la navigation sur le site, pour vous garantir un fonctionnement optimal. Ils ne peuvent donc pas être désactivés.

Statistiques de visitesPour améliorer votre expérience, on a besoin de savoir ce qui vous intéresse !
Les données récoltées sont anonymisées.

?

Google Analytics

Annonces personnaliséesOn garde le contact ? Ces cookies nous permettent de vous proposer des contenus publicitaires adaptés à vos centres d'intérêts.

?

Google Ads

?

Facebook Pixel

?

Youtube

En savoir plus