Sélection
0
ADHÉRER À LA FNAIM GRAND PARIS Extranet
Fnaim-75
  • Accueil
  • Qui sommes-nous
    • Qui sommes-nous?
    • Etudes économiques
    • Formations
    • Conseils juridiques
  • Vos outils
    • FNAIM Légal by Modelo
    • Hub FNAIM
    • Extranet FNAIM Grand Paris
    • Centrale d'achat
    • Baromètre des prix
    • Observatoire des loyers
    • ImmoCV
  • Partenaires
  • Actualités
    • Évènements
    • Vidéos
    • Presse
    • Revue professions immobilières
    • Lettre votre patrimoine
    • Observatoires
    • Actualités juridiques
    • Nouveaux adhérents
  • Trouver une agence
  • Carte d'attractivité
VotreRecherche
Dans un rayon de
Budget
Entre € et €
Entre
et
Min. €
Max. €
Surface
Entre m2 et m2
Min. m2
Max. m2
Pièces
Entre pièces et pièces
Min. pièces
Max. pièces
  1. Accueil
  2. Houilles
  3. 4 Pièces - 81m²
< Retour

Appartement
4 Pièces 81 m²

Houilles - 78800

398 000 €
Descriptif du bien
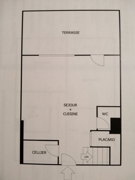
AFR IMMOBILIER vous propose en exclusivité ce duplex de 82 m², idéalement situé en centre-ville, à seulement 7 minutes de la gare RER A de Houilles. Ce bien est agencé de la manière suivante: Séjour/Salle à Manger : Un espace de vie spacieux de 35 m² avec une cuisine ouverte, offrant une convivialité exceptionnelle. Ce séjour lumineux s'ouvre sur une grande terrasse de 24 m², parfaite pour vos moments de détente ou vos repas en plein air. À l'Étage : Trois chambres bien agencées, accompagnées d'une salle de bains moderne avec wc. Chaque chambre bénéficie d'un agencement optimisé pour un maximum de confort. Place de Parking : Une place de parking en sous-sol, large de 350 cm et boxable, avec une petite fenêtre d'aération. Un atout non négligeable en centre-ville ! Débarras : Un débarras de stockage de 2.5 m³, installé dans la cage d'escalier, pour un rangement supplémentaire. Prestations et Rénovations : Fenêtres et Volets : Fenêtres en double vitrage et volets électriques rénovés en 2018, assurant une excellente isolation thermique et phonique. Électricité : Tableau et circuit électrique entièrement refaits en 2013, garantissant sécurité et conformité. Cuisine et Salle de Bains : Entièrement refaites à neuf il y a quelques années, avec des matériaux de qualité et un design moderne. Agencement : Un excellent agencement des pièces, avec un espace de vie spacieux et lumineux au rez-de-chaussée, et un étage dédié aux chambres pour plus d'intimité. Avantages : Double Vitrage et Volets Électriques : Pour un confort thermique et acoustique optimal. Terrasse de 24 m² : Idéale pour profiter des beaux jours. Emplacement Idéal : À proximité immédiate des commerces, écoles et transports en commun. Ne manquez pas cette opportunité unique d'acquérir un bien rare en centre-ville. Contactez-nous dès aujourd'hui pour organiser une visite ! Vincent PITEROIS (EI) Agent Commercial - Numéro RSAC : 980774806 - .
Détails du bien
  • Superficie (m²) 81
  • Code postal 78800
  • Nombre de chambre(s) 3
  • Nombre de pièces 4
  • Nb de salle de bain 1
Diagnostic de
performances énergétiques
DPE
GES
Ce bien est proposé par
AFR IMMOBILIER
AFR IMMOBILIER
Voir les biens de l'agence
7 Rue Auguste Renoir
78400 Chatou
01 3 0 53 5 4 20
afrimmobilier@wanadoo.fr
WWW.AFR-IMMOBILIER.COM
Nos outils
Nous contacter pour ce bien

* champs obligatoire

Les informations communiquées sont destinées à "La Chambre FNAIM du Grand Paris" éditrice de ce site. Vous bénéficiez d'un droit d'accès, de modification, de rectification et de suppression de vos données personnelles (Loi n°2004-575 du 21 juin 2004 pour la confiance dans l'économie numérique). Pour les exercer, adressez vous à l’adresse de l’Editeur.

Partager ce
bien
Partager ce
bien

* champs obligatoire

Les informations communiquées sont destinées à "La Chambre FNAIM du Grand Paris" éditrice de ce site. Vous bénéficiez d'un droit d'accès, de modification, de rectification et de suppression de vos données personnelles (Loi n°2004-575 du 21 juin 2004 pour la confiance dans l'économie numérique). Pour les exercer, adressez vous à l’adresse de l’Editeur.

Calculatrice financière
Mensualités :

* Champs obligatoires

Ces biens
peuvent vous intéresser

  • Vente
    Appartement
    78800 houilles
    279 000 €
  • Vente
    Appartement
    78800 houilles
    362 250 €
  • Vente
    Appartement
    78800 houilles
    250 000 €
Fnaim-
  • Contact
  • Partenaires
  • IMMOCV
  • Liens utiles
EXTRANET Déposer un avis

© 2026 | Tous droits réservés |

  • Plan du site
  • Mentions légales
  • Partenaires
  • Contact
  • Contact DPO
27bis, avenue de Villiers, 75017 PARIS
Réalisé par

Comme beaucoup, notre site utilise les cookies

On aimerait vous accompagner pendant votre visite. En poursuivant, vous acceptez l'utilisation des cookies par ce site, afin de vous proposer des contenus adaptés et réaliser des statistiques !

Paramétrer

Cookies fonctionnelsCes cookies sont indispensables à la navigation sur le site, pour vous garantir un fonctionnement optimal. Ils ne peuvent donc pas être désactivés.

Statistiques de visitesPour améliorer votre expérience, on a besoin de savoir ce qui vous intéresse !
Les données récoltées sont anonymisées.

?

Google Analytics

Annonces personnaliséesOn garde le contact ? Ces cookies nous permettent de vous proposer des contenus publicitaires adaptés à vos centres d'intérêts.

?

Google Ads

?

Facebook Pixel

?

Youtube

En savoir plus