Sélection
0
ADHÉRER À LA FNAIM GRAND PARIS Extranet
Fnaim-75
  • Accueil
  • Qui sommes-nous
    • Qui sommes-nous?
    • Etudes économiques
    • Formations
    • Conseils juridiques
  • Vos outils
    • FNAIM Légal by Modelo
    • Hub FNAIM
    • Extranet FNAIM Grand Paris
    • Centrale d'achat
    • Baromètre des prix
    • Observatoire des loyers
    • ImmoCV
  • Partenaires
  • Actualités
    • Évènements
    • Vidéos
    • Presse
    • Revue professions immobilières
    • Lettre votre patrimoine
    • Observatoires
    • Actualités juridiques
    • Nouveaux adhérents
  • Trouver une agence
  • Carte d'attractivité
VotreRecherche
Dans un rayon de
Budget
Entre € et €
Entre
et
Min. €
Max. €
Surface
Entre m2 et m2
Min. m2
Max. m2
Pièces
Entre pièces et pièces
Min. pièces
Max. pièces
  1. Accueil
  2. La Courneuve
  3. 2 Pièces - 65m²
< Retour

Appartement
2 Pièces 65 m²

La Courneuve - 93120

325 308 €
Descriptif du bien
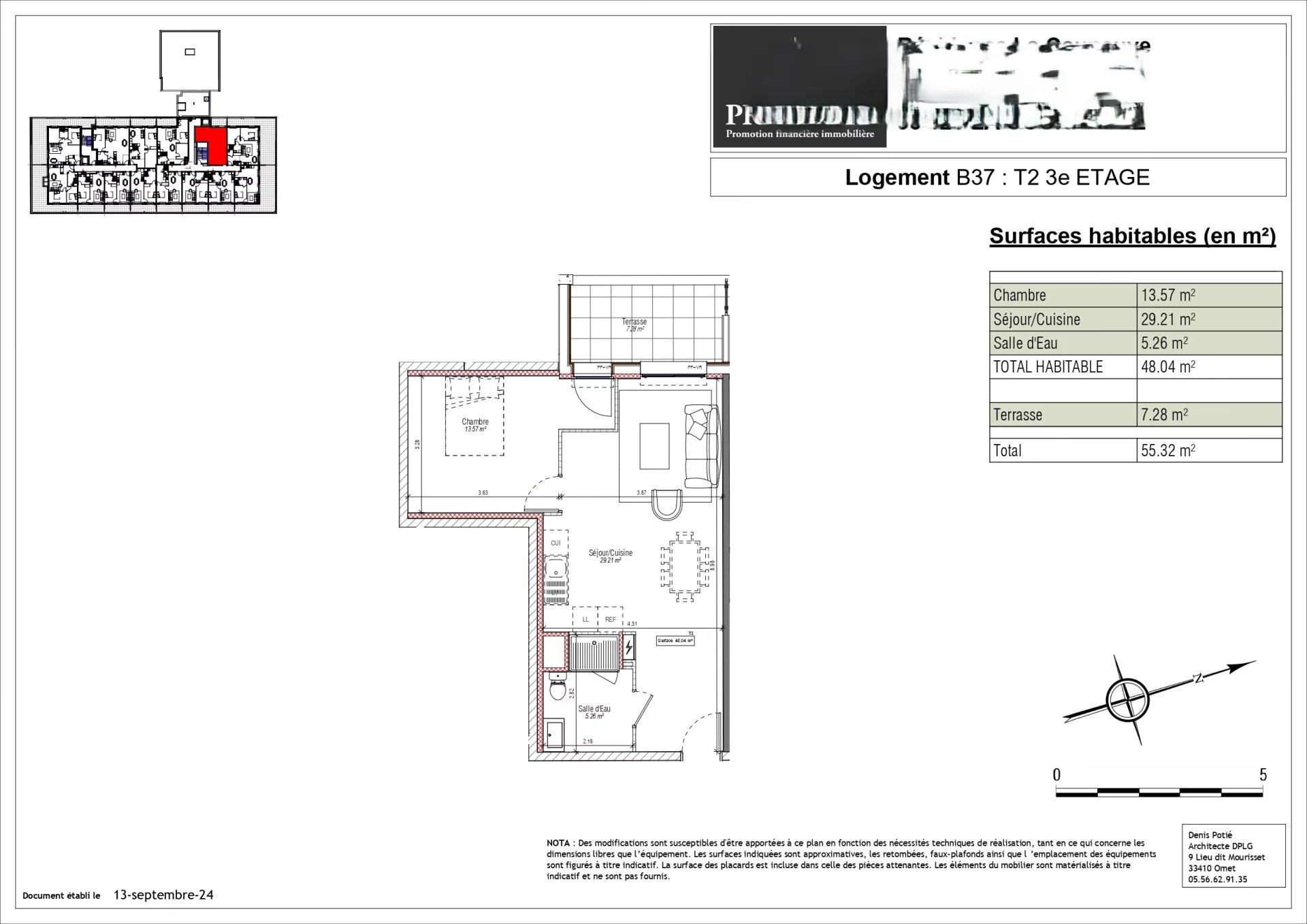
Dans une résidence neuve, situé en plein cœur de ville, dans un quartier transformé et dynamique avec commerces, commodités, écoles et transports à proximité. Votre futur appartement est peut-être ce T2 composé de : - séjour avec cuisine ouverte, une belle pièce de vie, - une chambre spacieuse donnant sur terrasse, - une salle d'eau avec WC, - une entrée pour distribuer les pièces, - une alcôve pour une pièce en plus. - un balcon vue dégagée et sur jardin. Exposé plein est, avec parking et cave en option. Chauffage et eau chaude collective, local vélo, c'est peut-être votre future Résidence Principale. Contactez nos équipes pour plus de renseignement ! (éligible TVA 5,5%, PINEL) Livraison prévue fin 2025 ! Réservez sans tarder :) (déjà la moitié des lots vendus)
Détails du bien
  • Superficie (m²) 65
  • Code postal 93120
  • Nombre de chambre(s) 1
  • Nombre de pièces 2
Diagnostic de
performances énergétiques
DPE
GES
Ce bien est proposé par
BUSINESS EN PLUS - LETS GO IMMOBILIER
BUSINESS EN PLUS - LETS GO IMMOBILIER
Voir les biens de l'agence
7 Rue Louise Thuliez
75019 Paris 19
06 49 78 73 65
contact@letsgoimmobilier.com
www.letsgoimmobilier.fr
Nos outils
Nous contacter pour ce bien

* champs obligatoire

Les informations communiquées sont destinées à "La Chambre FNAIM du Grand Paris" éditrice de ce site. Vous bénéficiez d'un droit d'accès, de modification, de rectification et de suppression de vos données personnelles (Loi n°2004-575 du 21 juin 2004 pour la confiance dans l'économie numérique). Pour les exercer, adressez vous à l’adresse de l’Editeur.

Partager ce
bien
Partager ce
bien

* champs obligatoire

Les informations communiquées sont destinées à "La Chambre FNAIM du Grand Paris" éditrice de ce site. Vous bénéficiez d'un droit d'accès, de modification, de rectification et de suppression de vos données personnelles (Loi n°2004-575 du 21 juin 2004 pour la confiance dans l'économie numérique). Pour les exercer, adressez vous à l’adresse de l’Editeur.

Calculatrice financière
Mensualités :

* Champs obligatoires

Ces biens
peuvent vous intéresser

  • Vente
    Appartement
    93120 la courneuve
    416 302 €
  • Vente
    Appartement
    93120 la courneuve
    369 668 €
  • Vente
    Appartement
    93120 la courneuve
    287 772 €
Fnaim-
  • Contact
  • Partenaires
  • IMMOCV
  • Liens utiles
EXTRANET Déposer un avis

© 2026 | Tous droits réservés |

  • Plan du site
  • Mentions légales
  • Partenaires
  • Contact
  • Contact DPO
27bis, avenue de Villiers, 75017 PARIS
Réalisé par

Comme beaucoup, notre site utilise les cookies

On aimerait vous accompagner pendant votre visite. En poursuivant, vous acceptez l'utilisation des cookies par ce site, afin de vous proposer des contenus adaptés et réaliser des statistiques !

Paramétrer

Cookies fonctionnelsCes cookies sont indispensables à la navigation sur le site, pour vous garantir un fonctionnement optimal. Ils ne peuvent donc pas être désactivés.

Statistiques de visitesPour améliorer votre expérience, on a besoin de savoir ce qui vous intéresse !
Les données récoltées sont anonymisées.

?

Google Analytics

Annonces personnaliséesOn garde le contact ? Ces cookies nous permettent de vous proposer des contenus publicitaires adaptés à vos centres d'intérêts.

?

Google Ads

?

Facebook Pixel

?

Youtube

En savoir plus