Sélection
0
ADHÉRER À LA FNAIM GRAND PARIS Extranet
Fnaim-75
  • Accueil
  • Qui sommes-nous
    • Qui sommes-nous?
    • Etudes économiques
    • Formations
    • Conseils juridiques
  • Vos outils
    • FNAIM Légal by Modelo
    • Hub FNAIM
    • Extranet FNAIM Grand Paris
    • Centrale d'achat
    • Baromètre des prix
    • Observatoire des loyers
    • ImmoCV
  • Partenaires
  • Actualités
    • Évènements
    • Vidéos
    • Presse
    • Revue professions immobilières
    • Lettre votre patrimoine
    • Observatoires
    • Actualités juridiques
    • Nouveaux adhérents
  • Trouver une agence
  • Carte d'attractivité
VotreRecherche
Dans un rayon de
Budget
Entre € et €
Entre
et
Min. €
Max. €
Surface
Entre m2 et m2
Min. m2
Max. m2
Pièces
Entre pièces et pièces
Min. pièces
Max. pièces
  1. Accueil
  2. St Cyr L Ecole
  3. 2 Pièces - 42m²
< Retour

Appartement
2 Pièces 42 m²

St Cyr L Ecole - 78210

260 500 €
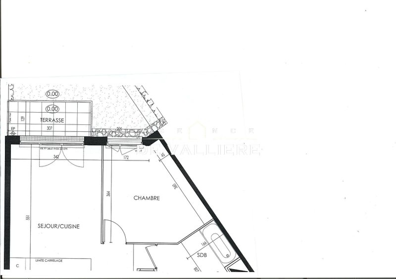
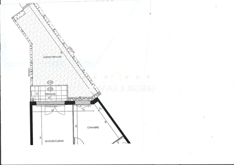
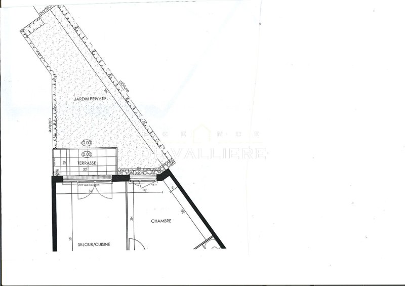
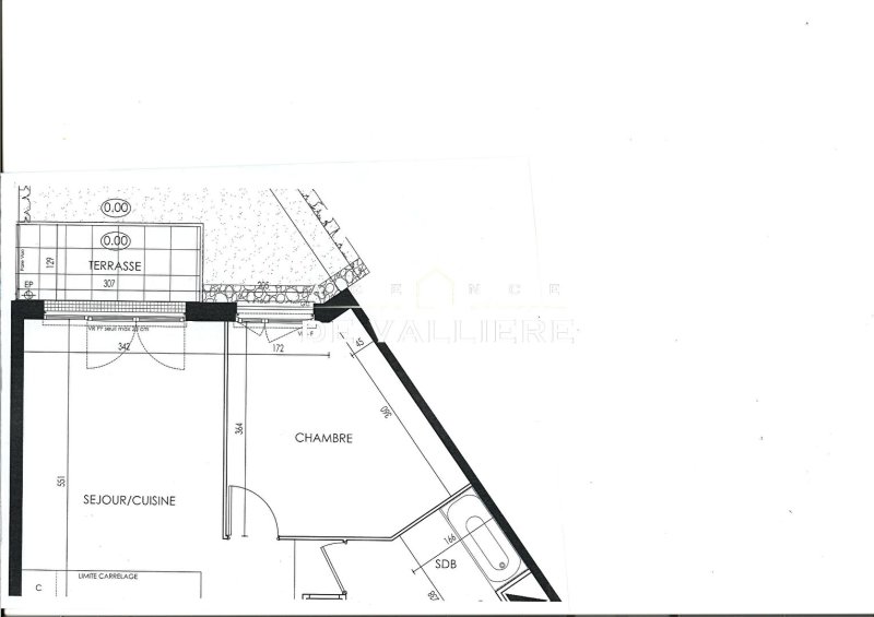
Descriptif du bien
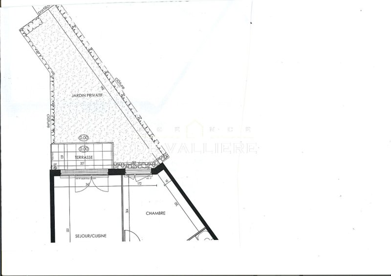
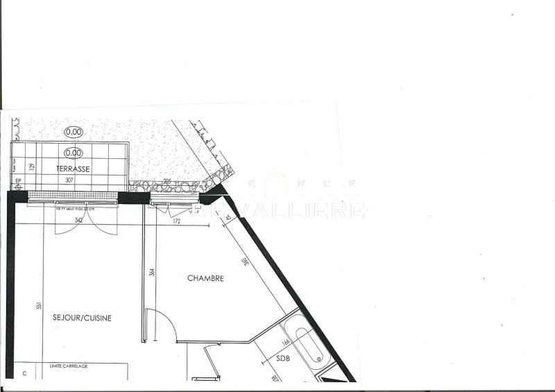
A 2 pas de la gare de Saint-Cyr- l'Ecole et en lisière du parc de Versailles, à proximité des commerces, services, restaurants et établissements scolaires dont le lycée militaire, situés à quelques minutes à pied de la résidence. De nombreux espaces verts, dont le parc château à 6 min, en voiture, résidence récente de standing propose un appartement confortable au rez-de-chaussée de 2 pièces de 42m2, une entrée , un séjour ouvert sur la cuisine , une chambre, une terrasse, jardin privatif , un parking en sous-sol. Opportunité proposée par groupe De Vallière
Détails du bien
  • Superficie (m²) 42
  • Code postal 78210
  • Nombre de chambre(s) 11
  • Nombre de pièces 2
  • Nb de salle de bain 6
Diagnostic de
performances énergétiques
DPE
GES
Ce bien est proposé par
AGENCE DE VALLIERE / LA MAISON DE L'IMMOBILIER
AGENCE DE VALLIERE / LA MAISON DE L'IMMOBILIER
Voir les biens de l'agence
66 Boulevard Richard Wallace
92800 Puteaux
01 4 6 25 0 3 80
puteaux@de-valliere.com
WWW.AGENCEDEVALLIERE.COM
Nos outils
Nous contacter pour ce bien

* champs obligatoire

Les informations communiquées sont destinées à "La Chambre FNAIM du Grand Paris" éditrice de ce site. Vous bénéficiez d'un droit d'accès, de modification, de rectification et de suppression de vos données personnelles (Loi n°2004-575 du 21 juin 2004 pour la confiance dans l'économie numérique). Pour les exercer, adressez vous à l’adresse de l’Editeur.

Partager ce
bien
Partager ce
bien

* champs obligatoire

Les informations communiquées sont destinées à "La Chambre FNAIM du Grand Paris" éditrice de ce site. Vous bénéficiez d'un droit d'accès, de modification, de rectification et de suppression de vos données personnelles (Loi n°2004-575 du 21 juin 2004 pour la confiance dans l'économie numérique). Pour les exercer, adressez vous à l’adresse de l’Editeur.

Calculatrice financière
Mensualités :

* Champs obligatoires

Ces biens
peuvent vous intéresser

  • Vente
    Appartement
    78210 st cyr l ecole
    257 300 €
  • Vente
    Appartement
    78210 st cyr l ecole
    544 000 €
  • Vente
    Appartement
    78210 st cyr l ecole
    359 400 €
Fnaim-
  • Contact
  • Partenaires
  • IMMOCV
  • Liens utiles
EXTRANET Déposer un avis

© 2026 | Tous droits réservés |

  • Plan du site
  • Mentions légales
  • Partenaires
  • Contact
  • Contact DPO
27bis, avenue de Villiers, 75017 PARIS
Réalisé par

Comme beaucoup, notre site utilise les cookies

On aimerait vous accompagner pendant votre visite. En poursuivant, vous acceptez l'utilisation des cookies par ce site, afin de vous proposer des contenus adaptés et réaliser des statistiques !

Paramétrer

Cookies fonctionnelsCes cookies sont indispensables à la navigation sur le site, pour vous garantir un fonctionnement optimal. Ils ne peuvent donc pas être désactivés.

Statistiques de visitesPour améliorer votre expérience, on a besoin de savoir ce qui vous intéresse !
Les données récoltées sont anonymisées.

?

Google Analytics

Annonces personnaliséesOn garde le contact ? Ces cookies nous permettent de vous proposer des contenus publicitaires adaptés à vos centres d'intérêts.

?

Google Ads

?

Facebook Pixel

?

Youtube

En savoir plus