Sélection
0
ADHÉRER À LA FNAIM GRAND PARIS Extranet
Fnaim-75
  • Accueil
  • Qui sommes-nous
    • Qui sommes-nous?
    • Etudes économiques
    • Formations
    • Conseils juridiques
  • Vos outils
    • FNAIM Légal by Modelo
    • Hub FNAIM
    • Extranet FNAIM Grand Paris
    • Centrale d'achat
    • Baromètre des prix
    • Observatoire des loyers
    • ImmoCV
  • Partenaires
  • Actualités
    • Évènements
    • Vidéos
    • Presse
    • Revue professions immobilières
    • Lettre votre patrimoine
    • Observatoires
    • Actualités juridiques
    • Nouveaux adhérents
  • Trouver une agence
  • Carte d'attractivité
VotreRecherche
Dans un rayon de
Budget
Entre € et €
Entre
et
Min. €
Max. €
Surface
Entre m2 et m2
Min. m2
Max. m2
Pièces
Entre pièces et pièces
Min. pièces
Max. pièces
  1. Accueil
  2. Paris 03
  3. Vente
  4. Appartement
  5. 2 Pièces - 50m²
< Retour

Appartement
2 Pièces 50 m²

Paris 03 - 75003

550 000 €
Descriptif du bien
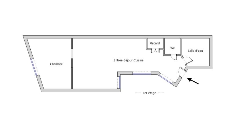
Le groupe THISSE vous propose ce 2 pièces de 50.66 m² en parfait état clé en main idéalement placé à 3 min à pied de la place des Vosges au 1er étage sur rue et cour. Ce bien comprend entrée - un séjour avec une cuisine ouverte aménagée et semi-équipée - une chambre - une salle de bain avec grande douche à l'italienne - WC séparés - chauffage et eau chaude électrique. Aucun travaux à prévoir. Bien soumis au statut de la copropriété - syndic : - quote-part annuelles : 2326 Euro /an Geoffroy Barbirato 0624987186
Détails du bien
  • Superficie (m²) 50
  • Code postal 75003
  • Nombre de chambre(s) 1
  • Nombre de pièces 2
Diagnostic de
performances énergétiques
DPE
GES
Ce bien est proposé par
CABINET THISSE-AGENCE DU 15EME
CABINET THISSE-AGENCE DU 15EME
Voir les biens de l'agence
18 Rue Mademoiselle
75015 Paris 15
01 5 3 68 6 7 67
florent.thisse@wanadoo.fr
www.thisse.com
Nos outils
Nous contacter pour ce bien

* champs obligatoire

Les informations communiquées sont destinées à "La Chambre FNAIM du Grand Paris" éditrice de ce site. Vous bénéficiez d'un droit d'accès, de modification, de rectification et de suppression de vos données personnelles (Loi n°2004-575 du 21 juin 2004 pour la confiance dans l'économie numérique). Pour les exercer, adressez vous à l’adresse de l’Editeur.

Partager ce
bien
Partager ce
bien

* champs obligatoire

Les informations communiquées sont destinées à "La Chambre FNAIM du Grand Paris" éditrice de ce site. Vous bénéficiez d'un droit d'accès, de modification, de rectification et de suppression de vos données personnelles (Loi n°2004-575 du 21 juin 2004 pour la confiance dans l'économie numérique). Pour les exercer, adressez vous à l’adresse de l’Editeur.

Calculatrice financière
Mensualités :

* Champs obligatoires

Ces biens
peuvent vous intéresser

  • Vente
    Appartement
    75003 paris 03
    435 000 €
  • Vente
    Appartement
    75003 paris 03
    2 650 000 €
  • Vente
    Appartement
    75003 paris 03
    1 250 000 €
Fnaim-
  • Contact
  • Partenaires
  • IMMOCV
  • Liens utiles
EXTRANET Déposer un avis

© 2026 | Tous droits réservés |

  • Plan du site
  • Mentions légales
  • Partenaires
  • Contact
  • Contact DPO
27bis, avenue de Villiers, 75017 PARIS
Réalisé par

Comme beaucoup, notre site utilise les cookies

On aimerait vous accompagner pendant votre visite. En poursuivant, vous acceptez l'utilisation des cookies par ce site, afin de vous proposer des contenus adaptés et réaliser des statistiques !

Paramétrer

Cookies fonctionnelsCes cookies sont indispensables à la navigation sur le site, pour vous garantir un fonctionnement optimal. Ils ne peuvent donc pas être désactivés.

Statistiques de visitesPour améliorer votre expérience, on a besoin de savoir ce qui vous intéresse !
Les données récoltées sont anonymisées.

?

Google Analytics

Annonces personnaliséesOn garde le contact ? Ces cookies nous permettent de vous proposer des contenus publicitaires adaptés à vos centres d'intérêts.

?

Google Ads

?

Facebook Pixel

?

Youtube

En savoir plus