Sélection
0
ADHÉRER À LA FNAIM GRAND PARIS Extranet
Fnaim-75
  • Accueil
  • Qui sommes-nous
    • Qui sommes-nous?
    • Etudes économiques
    • Formations
    • Conseils juridiques
  • Vos outils
    • FNAIM Légal by Modelo
    • Hub FNAIM
    • Extranet FNAIM Grand Paris
    • Centrale d'achat
    • Baromètre des prix
    • Observatoire des loyers
    • ImmoCV
  • Partenaires
  • Actualités
    • Évènements
    • Vidéos
    • Presse
    • Revue professions immobilières
    • Lettre votre patrimoine
    • Observatoires
    • Actualités juridiques
    • Nouveaux adhérents
  • Trouver une agence
  • Carte d'attractivité
VotreRecherche
Dans un rayon de
Budget
Entre € et €
Entre
et
Min. €
Max. €
Surface
Entre m2 et m2
Min. m2
Max. m2
Pièces
Entre pièces et pièces
Min. pièces
Max. pièces
  1. Accueil
  2. Paris 04
  3. Vente
  4. Appartement
  5. 1 Pièce - 24m²
< Retour

Appartement
1 Pièce 24 m²

Paris 04 - 75004

425 000 €
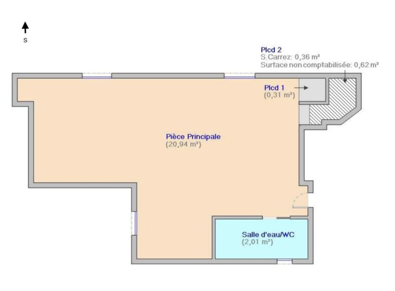
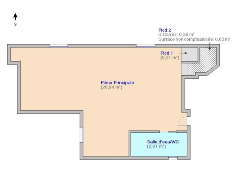
Descriptif du bien
Au coeur du Marais et à proximité de nombreux commerces et transports, Engel & Völkers vous propose en exclusivité cet élégant studio traversant de 24 m², situé au 4e étage par ascenseur d'un immeuble ancien parfaitement entretenu. Baigné de lumière grâce à sa double orientation et à ses quatre fenêtres, ce bien propose un plan parfaitement optimisé avec une grande pièce de vie, une cuisine équipée, une salle d'eau avec wc et placards. Orienté sud dans la pièce principale, le bien offre des vues sur l'Hôtel de la Faye, magnifique logis renaissance. Sans perte de place, calme et lumineux, ce bien est idéal comme pied à terre ou investissement patrimonial. Une grande cave complète ce bien. DPE : F/521 GES : E/8 Logement à consommation énergétique excessive : F Estimations des coûts annuels d'énergie du logement : 980 € - 1370€ Copropriété de 76 lots dont 45 d'habitation Charges annuelles moyennes : environ 612 € / année Procédure en cours : non Honoraires de transaction à la charge du vendeur. Les informations sur les risques auxquels ce bien est exposé sont disponibles sur le site Géorisques : www.georisques.gouv.fr Le bien est situé dans l'hypercentre et en plein coeur du Marais, à proximité de nombreux transports dont : Saint-Paul (Ligne 1) Pont-Marie (ligne 7) Hôtel de Ville (Ligne 1 et 11) La vie de quartier y est agréable, avec de nombreux commerces et lieux de vie.
Détails du bien
  • Superficie (m²) 24
  • Code postal 75004
  • Nombre de pièces 1
  • Nb de salle de bain 1
Diagnostic de
performances énergétiques
DPE
GES
Ce bien est proposé par
Engel & Völkers
Engel & Völkers
Voir les biens de l'agence
170 Rue Du Faubourg Saint-Honore
75008 Paris 08
01 4 5 64 3 0 30
paris.leads@engelvoelkers.com
www.engelvoelkers.com/fr
Nos outils
Nous contacter pour ce bien

* champs obligatoire

Les informations communiquées sont destinées à "La Chambre FNAIM du Grand Paris" éditrice de ce site. Vous bénéficiez d'un droit d'accès, de modification, de rectification et de suppression de vos données personnelles (Loi n°2004-575 du 21 juin 2004 pour la confiance dans l'économie numérique). Pour les exercer, adressez vous à l’adresse de l’Editeur.

Partager ce
bien
Partager ce
bien

* champs obligatoire

Les informations communiquées sont destinées à "La Chambre FNAIM du Grand Paris" éditrice de ce site. Vous bénéficiez d'un droit d'accès, de modification, de rectification et de suppression de vos données personnelles (Loi n°2004-575 du 21 juin 2004 pour la confiance dans l'économie numérique). Pour les exercer, adressez vous à l’adresse de l’Editeur.

Calculatrice financière
Mensualités :

* Champs obligatoires

Ces biens
peuvent vous intéresser

  • Vente
    Appartement
    75004 paris 04
    2 250 000 €
  • Vente
    Appartement
    75004 paris 04
    310 000 €
  • Vente
    Appartement
    75004 paris 04
    325 000 €
Fnaim-
  • Contact
  • Partenaires
  • IMMOCV
  • Liens utiles
EXTRANET Déposer un avis

© 2026 | Tous droits réservés |

  • Plan du site
  • Mentions légales
  • Partenaires
  • Contact
  • Contact DPO
27bis, avenue de Villiers, 75017 PARIS
Réalisé par

Comme beaucoup, notre site utilise les cookies

On aimerait vous accompagner pendant votre visite. En poursuivant, vous acceptez l'utilisation des cookies par ce site, afin de vous proposer des contenus adaptés et réaliser des statistiques !

Paramétrer

Cookies fonctionnelsCes cookies sont indispensables à la navigation sur le site, pour vous garantir un fonctionnement optimal. Ils ne peuvent donc pas être désactivés.

Statistiques de visitesPour améliorer votre expérience, on a besoin de savoir ce qui vous intéresse !
Les données récoltées sont anonymisées.

?

Google Analytics

Annonces personnaliséesOn garde le contact ? Ces cookies nous permettent de vous proposer des contenus publicitaires adaptés à vos centres d'intérêts.

?

Google Ads

?

Facebook Pixel

?

Youtube

En savoir plus