Sélection
0
ADHÉRER À LA FNAIM GRAND PARIS Extranet
Fnaim-75
  • Accueil
  • Qui sommes-nous
    • Qui sommes-nous?
    • Etudes économiques
    • Formations
    • Conseils juridiques
  • Vos outils
    • FNAIM Légal by Modelo
    • Hub FNAIM
    • Extranet FNAIM Grand Paris
    • Centrale d'achat
    • Baromètre des prix
    • Observatoire des loyers
    • ImmoCV
  • Partenaires
  • Actualités
    • Évènements
    • Vidéos
    • Presse
    • Revue professions immobilières
    • Lettre votre patrimoine
    • Observatoires
    • Actualités juridiques
    • Nouveaux adhérents
  • Trouver une agence
  • Carte d'attractivité
VotreRecherche
Dans un rayon de
Budget
Entre € et €
Entre
et
Min. €
Max. €
Surface
Entre m2 et m2
Min. m2
Max. m2
Pièces
Entre pièces et pièces
Min. pièces
Max. pièces
  1. Accueil
  2. Paris 04
  3. Vente
  4. Appartement
  5. 2 Pièces - 47m²
< Retour

Appartement
2 Pièces 47 m²

Paris 04 - 75004

640 000 €
Descriptif du bien
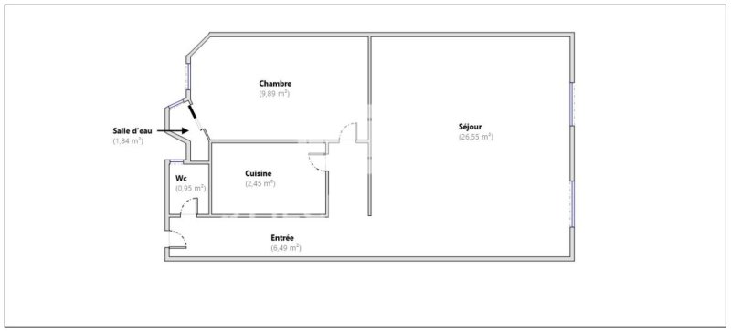
PARIS (75004), quartier Saint Merri au coeur du Marais, au sein d'un immeuble ancien au 3ème étage avec ascenseur, Appartement 2 pièces traversant (ouest/nord), 47m2, composé d'une grande pièce de vie, une CHAMBRE sur cour avec accès direct à sa salle d'eau, toilettes invités. Une cave complète le bien.CALME en retrait de l'agitation du quartier tout en étant à proximité de toutes commodités, commerces, boutiques, restaurants et transports (à 5 minutes à pied du métro Hotel de ville, nombreux bus) ; charme de l'ancien, cheminée, parquet; Travaux à prevoir. Pour toute demande de renseignements et visites, contactez Laurence SARACINO - Agent commercial RSAC N° 817 804 354 - Ville du greffe : PARIS - 5 PIECES ET PLUS, 1ère agence immobilière spécialisée dans les biens familiaux de minimum 3 CHAMBRES (Paris, Ile-de-France / Bordeaux, Bassin d'Arcachon) www.5piecesetplus.com (réf. 9201111960) Honoraires à la charge du vendeur . Bien soumis au statut juridique de la Copropriété. Pas de procédure en cours. Les informations sur les risques auxquels ce bien est exposé sont disponibles sur le site georisques.gouv.fr ** Inter-cabinet bienvenu : travaillons ensemble pour des transactions réussies et la satisfaction de nos clients ** 5 PIÈCES ET PLUS est membre du GNI - Groupement National des Indépendants, un réseau qui valorise les meilleurs agents immobiliers de France, ceux qui placent le professionnalisme, la qualité de service et l'engagement au cœur de leur métier. 10 ans après sa création, 5 PIÈCES ET PLUS est référencée depuis 2024 dans le Guide National de l'Immobilier, une véritable distinction pour les agences qui s'impliquent pleinement dans la réussite des projets immobiliers de leurs clients. Parce que votre projet est aussi un peu le nôtre, nous mettons tout en œuvre pour vous offrir une expérience unique et sur-mesure ! 5 PIÈCES ET PLUS, agence FNAIM, gage de sérieux et de professionnalisme. Agence responsable et engagée, sécurité juridique, veille réglementaire permanente, formation continue,… La garantie d'un haut niveau de compétence. FNAIM, 1er syndicat immobilier de France.
Détails du bien
  • Superficie (m²) 47
  • Code postal 75004
  • Nombre de chambre(s) 1
  • Nombre de pièces 2
Diagnostic de
performances énergétiques
DPE
GES
Ce bien est proposé par
5 PIECES ET PLUS
5 PIECES ET PLUS
Voir les biens de l'agence
3 Bis Rue Louise Michel
92300 Levallois Perret
06 6 3 55 6 6 08
caroline.logeais@5piecesetplus.com
www.5piecesetplus.com
Nos outils
Nous contacter pour ce bien

* champs obligatoire

Les informations communiquées sont destinées à "La Chambre FNAIM du Grand Paris" éditrice de ce site. Vous bénéficiez d'un droit d'accès, de modification, de rectification et de suppression de vos données personnelles (Loi n°2004-575 du 21 juin 2004 pour la confiance dans l'économie numérique). Pour les exercer, adressez vous à l’adresse de l’Editeur.

Partager ce
bien
Partager ce
bien

* champs obligatoire

Les informations communiquées sont destinées à "La Chambre FNAIM du Grand Paris" éditrice de ce site. Vous bénéficiez d'un droit d'accès, de modification, de rectification et de suppression de vos données personnelles (Loi n°2004-575 du 21 juin 2004 pour la confiance dans l'économie numérique). Pour les exercer, adressez vous à l’adresse de l’Editeur.

Calculatrice financière
Mensualités :

* Champs obligatoires

Ces biens
peuvent vous intéresser

  • Vente
    Appartement
    75004 paris 04
    549 000 €
  • Vente
    Appartement
    75004 paris 04
    215 000 €
  • Vente
    Appartement
    75004 paris 04
    949 000 €
Fnaim-
  • Contact
  • Partenaires
  • IMMOCV
  • Liens utiles
EXTRANET Déposer un avis

© 2026 | Tous droits réservés |

  • Plan du site
  • Mentions légales
  • Partenaires
  • Contact
  • Contact DPO
27bis, avenue de Villiers, 75017 PARIS
Réalisé par

Comme beaucoup, notre site utilise les cookies

On aimerait vous accompagner pendant votre visite. En poursuivant, vous acceptez l'utilisation des cookies par ce site, afin de vous proposer des contenus adaptés et réaliser des statistiques !

Paramétrer

Cookies fonctionnelsCes cookies sont indispensables à la navigation sur le site, pour vous garantir un fonctionnement optimal. Ils ne peuvent donc pas être désactivés.

Statistiques de visitesPour améliorer votre expérience, on a besoin de savoir ce qui vous intéresse !
Les données récoltées sont anonymisées.

?

Google Analytics

Annonces personnaliséesOn garde le contact ? Ces cookies nous permettent de vous proposer des contenus publicitaires adaptés à vos centres d'intérêts.

?

Google Ads

?

Facebook Pixel

?

Youtube

En savoir plus