Sélection
0
ADHÉRER À LA FNAIM GRAND PARIS Extranet
Fnaim-75
  • Accueil
  • Qui sommes-nous
    • Qui sommes-nous?
    • Etudes économiques
    • Formations
    • Conseils juridiques
  • Vos outils
    • FNAIM Légal by Modelo
    • Hub FNAIM
    • Extranet FNAIM Grand Paris
    • Centrale d'achat
    • Baromètre des prix
    • Observatoire des loyers
    • ImmoCV
  • Partenaires
  • Actualités
    • Évènements
    • Vidéos
    • Presse
    • Revue professions immobilières
    • Lettre votre patrimoine
    • Observatoires
    • Actualités juridiques
    • Nouveaux adhérents
  • Trouver une agence
  • Carte d'attractivité
VotreRecherche
Dans un rayon de
Budget
Entre € et €
Entre
et
Min. €
Max. €
Surface
Entre m2 et m2
Min. m2
Max. m2
Pièces
Entre pièces et pièces
Min. pièces
Max. pièces
  1. Accueil
  2. Paris 12
  3. Vente
  4. Appartement
  5. 3 Pièces - 49m²
< Retour

Appartement
3 Pièces 49 m²

Paris 12 - 75012

439 000 €
Descriptif du bien
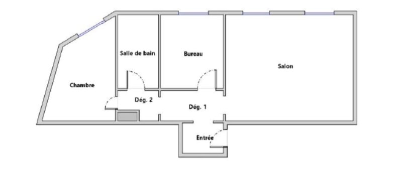
Dans copropriété bien entretenue, au pied des commerces, à deux pas des transports, à proximité du Bois de Vincennes et du parc de Bercy, CPH IMMOBILIER vous propose cet appartement 3 pièces, lumineux, en bon état, sans perte de place, comprenant : une entrée, un séjour avec grand placard, une cuisine aménagée-équipée ouverte sur le séjour, une salle de bains avec WC et un coin buanderie, deux chambres dont une pouvant être utilisée comme bureau ou chambre d'enfant, et une cave en sous-sol. IDEAL 1er ACHAT ou PIED A TERRE ! COUP DE COEUR ASSURE ! N'HESITEZ PAS A LE VISITER RAPIDEMENT ! Annonce proposée par Jean-Louis URZANQUI - Agence CPH Immobilier PARIS 12 Montant estimé des dépenses : entre 1.590 Euro et 2.180 Euro (années de référence 2021-2022 et 2023) Logement à  consommation énergétique : Classé F Les informations sur les risques auxquels ce bien est exposé sont disponibles sur le site Géorisques : www.georisques.gouv.fr Réf. Mandat: N°225931
Détails du bien
  • Superficie (m²) 49
  • Code postal 75012
  • Nombre de chambre(s) 2
  • Nombre de pièces 3
  • Nb de salle de bain 1
Diagnostic de
performances énergétiques
DPE
GES
Ce bien est proposé par
CPH PARIS 12
CPH PARIS 12
Voir les biens de l'agence
266 Rue De Charenton
75012 Paris 12
01 4 4 68 8 0 93
paris12@cph.fr
WWW@CPH.FR
Nos outils
Nous contacter pour ce bien

* champs obligatoire

Les informations communiquées sont destinées à "La Chambre FNAIM du Grand Paris" éditrice de ce site. Vous bénéficiez d'un droit d'accès, de modification, de rectification et de suppression de vos données personnelles (Loi n°2004-575 du 21 juin 2004 pour la confiance dans l'économie numérique). Pour les exercer, adressez vous à l’adresse de l’Editeur.

Partager ce
bien
Partager ce
bien

* champs obligatoire

Les informations communiquées sont destinées à "La Chambre FNAIM du Grand Paris" éditrice de ce site. Vous bénéficiez d'un droit d'accès, de modification, de rectification et de suppression de vos données personnelles (Loi n°2004-575 du 21 juin 2004 pour la confiance dans l'économie numérique). Pour les exercer, adressez vous à l’adresse de l’Editeur.

Calculatrice financière
Mensualités :

* Champs obligatoires

Ces biens
peuvent vous intéresser

  • Vente
    Appartement
    75012 paris 12
    1 470 900 €
  • Vente
    Appartement
    75012 paris 12
    1 900 000 €
  • Vente
    Appartement
    75012 paris 12
    460 000 €
Fnaim-
  • Contact
  • Partenaires
  • IMMOCV
  • Liens utiles
EXTRANET Déposer un avis

© 2026 | Tous droits réservés |

  • Plan du site
  • Mentions légales
  • Partenaires
  • Contact
  • Contact DPO
27bis, avenue de Villiers, 75017 PARIS
Réalisé par

Comme beaucoup, notre site utilise les cookies

On aimerait vous accompagner pendant votre visite. En poursuivant, vous acceptez l'utilisation des cookies par ce site, afin de vous proposer des contenus adaptés et réaliser des statistiques !

Paramétrer

Cookies fonctionnelsCes cookies sont indispensables à la navigation sur le site, pour vous garantir un fonctionnement optimal. Ils ne peuvent donc pas être désactivés.

Statistiques de visitesPour améliorer votre expérience, on a besoin de savoir ce qui vous intéresse !
Les données récoltées sont anonymisées.

?

Google Analytics

Annonces personnaliséesOn garde le contact ? Ces cookies nous permettent de vous proposer des contenus publicitaires adaptés à vos centres d'intérêts.

?

Google Ads

?

Facebook Pixel

?

Youtube

En savoir plus