Sélection
0
ADHÉRER À LA FNAIM GRAND PARIS Extranet
Fnaim-75
  • Accueil
  • Qui sommes-nous
    • Qui sommes-nous?
    • Etudes économiques
    • Formations
    • Conseils juridiques
  • Vos outils
    • FNAIM Légal by Modelo
    • Hub FNAIM
    • Extranet FNAIM Grand Paris
    • Centrale d'achat
    • Baromètre des prix
    • Observatoire des loyers
    • ImmoCV
  • Partenaires
  • Actualités
    • Évènements
    • Vidéos
    • Presse
    • Revue professions immobilières
    • Lettre votre patrimoine
    • Observatoires
    • Actualités juridiques
    • Nouveaux adhérents
  • Trouver une agence
  • Carte d'attractivité
VotreRecherche
Dans un rayon de
Budget
Entre € et €
Entre
et
Min. €
Max. €
Surface
Entre m2 et m2
Min. m2
Max. m2
Pièces
Entre pièces et pièces
Min. pièces
Max. pièces
  1. Accueil
  2. Paris 16
  3. Vente
  4. Appartement
  5. 2 Pièces - 44m²
< Retour

Appartement
2 Pièces 44 m²

Paris 16 - 75016

340 000 €
Descriptif du bien
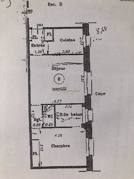
Paris 16 rue Michel Ange / Exelmans. dans un immeuble pierre de taille 1930 bon standing. De Chermont Immobilier vous propose un appartement 2 pièces de 45 m² vendu occupé. Ce bien situé au rez-de-chaussée face à une jolie cour arborée offre: une entrée avec placards. un séjour. une cuisine séparée (possibilité d'abattre la cloison pour une cuisine US). une chambre de 13 m² avec une grande penderie. une salle de bains. toilettes séparés et une cave. Possibilités professions libérales. Belle hauteur sous-plafond de 2.90 m. Le loyer est de 1192 € charges de 100 € comprises. Le bail vide (3 ans) date du 15/09/2021. Prix de vente 340 000 € honoraires d'agence inclus à la charge du vendeur. CLASSE ENERGIE: G. CLASSE CLIMAT: F.
Détails du bien
  • Superficie (m²) 44
  • Code postal 75016
  • Nombre de chambre(s) 1
  • Nombre de pièces 2
  • Nb de salle de bain 1
Diagnostic de
performances énergétiques
DPE
GES
Ce bien est proposé par
DE CHERMONT IMMOBILIER
DE CHERMONT IMMOBILIER
Voir les biens de l'agence
1 Square Racan
75016 Paris 16
01 44 96 82 70
agence@dechermontimmobilier.com
www.dechermontimmobilier.com
Nos outils
Nous contacter pour ce bien

* champs obligatoire

Les informations communiquées sont destinées à "La Chambre FNAIM du Grand Paris" éditrice de ce site. Vous bénéficiez d'un droit d'accès, de modification, de rectification et de suppression de vos données personnelles (Loi n°2004-575 du 21 juin 2004 pour la confiance dans l'économie numérique). Pour les exercer, adressez vous à l’adresse de l’Editeur.

Partager ce
bien
Partager ce
bien

* champs obligatoire

Les informations communiquées sont destinées à "La Chambre FNAIM du Grand Paris" éditrice de ce site. Vous bénéficiez d'un droit d'accès, de modification, de rectification et de suppression de vos données personnelles (Loi n°2004-575 du 21 juin 2004 pour la confiance dans l'économie numérique). Pour les exercer, adressez vous à l’adresse de l’Editeur.

Calculatrice financière
Mensualités :

* Champs obligatoires

Ces biens
peuvent vous intéresser

  • Vente
    Appartement
    75016 paris 16
    2 500 000 €
  • Vente
    Appartement
    75016 paris 16
    1 050 000 €
  • Vente
    Appartement
    75016 paris 16
    1 265 000 €
Fnaim-
  • Contact
  • Partenaires
  • IMMOCV
  • Liens utiles
EXTRANET Déposer un avis

© 2026 | Tous droits réservés |

  • Plan du site
  • Mentions légales
  • Partenaires
  • Contact
  • Contact DPO
27bis, avenue de Villiers, 75017 PARIS
Réalisé par

Comme beaucoup, notre site utilise les cookies

On aimerait vous accompagner pendant votre visite. En poursuivant, vous acceptez l'utilisation des cookies par ce site, afin de vous proposer des contenus adaptés et réaliser des statistiques !

Paramétrer

Cookies fonctionnelsCes cookies sont indispensables à la navigation sur le site, pour vous garantir un fonctionnement optimal. Ils ne peuvent donc pas être désactivés.

Statistiques de visitesPour améliorer votre expérience, on a besoin de savoir ce qui vous intéresse !
Les données récoltées sont anonymisées.

?

Google Analytics

Annonces personnaliséesOn garde le contact ? Ces cookies nous permettent de vous proposer des contenus publicitaires adaptés à vos centres d'intérêts.

?

Google Ads

?

Facebook Pixel

?

Youtube

En savoir plus