Sélection
0
ADHÉRER À LA FNAIM GRAND PARIS Extranet
Fnaim-75
  • Accueil
  • Qui sommes-nous
    • Qui sommes-nous?
    • Etudes économiques
    • Formations
    • Conseils juridiques
  • Vos outils
    • FNAIM Légal by Modelo
    • Hub FNAIM
    • Extranet FNAIM Grand Paris
    • Centrale d'achat
    • Baromètre des prix
    • Observatoire des loyers
    • ImmoCV
  • Partenaires
  • Actualités
    • Évènements
    • Vidéos
    • Presse
    • Revue professions immobilières
    • Lettre votre patrimoine
    • Observatoires
    • Actualités juridiques
    • Nouveaux adhérents
  • Trouver une agence
  • Carte d'attractivité
VotreRecherche
Dans un rayon de
Budget
Entre € et €
Entre
et
Min. €
Max. €
Surface
Entre m2 et m2
Min. m2
Max. m2
Pièces
Entre pièces et pièces
Min. pièces
Max. pièces
  1. Accueil
  2. Paris 18
  3. Vente
  4. Appartement
  5. 2 Pièces - 51m²
< Retour

Appartement
2 Pièces 51 m²

Paris 18 - 75018

249 000 €
Descriptif du bien
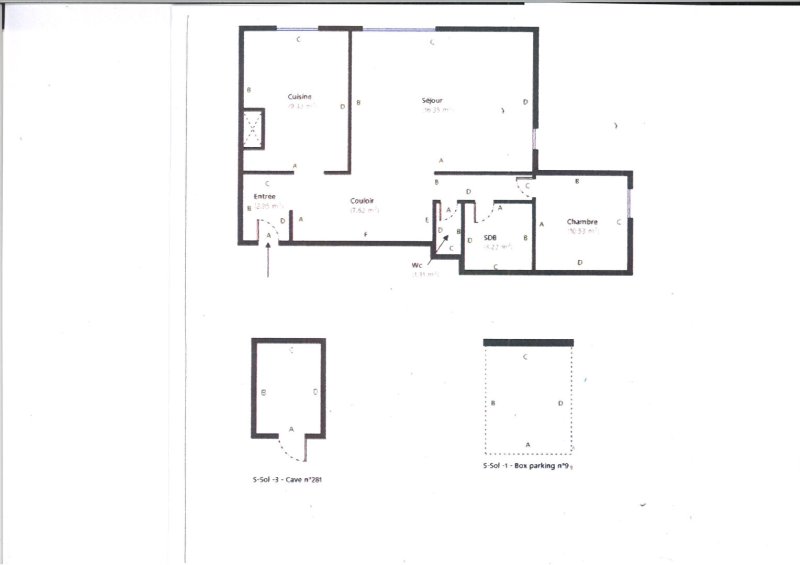
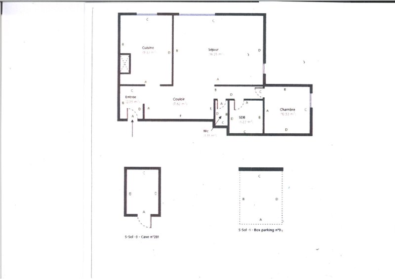
Paris 18ème - Porte de la Chapelle - 2 pièces de 51 m2 + box et cave Belle opportunité (4900 euros du m2) L'IMMOBILIER PAR CHARLY vous propose dans un immeuble semi-récent, un appartement de 2 pièces de 51,34 m2 loi carrez. Il est composé d'une spacieuse entrée, d'un séjour avec 2 expositions (Nord et Ouest), d'une chambre, d'une salle de bain et d'un water-closet indépendant. Il est totalement modulable et n'attends que vos envies de travaux ! Vue totalement dégagée et sans vis-à-vis, il est lumineux. Gardien, cave et un box en sous-sol. Très beau potentiel !
Détails du bien
  • Superficie (m²) 51
  • Code postal 75018
  • Nombre de chambre(s) 1
  • Nombre de pièces 2
  • Nb de salle de bain 1
Diagnostic de
performances énergétiques
DPE
GES
Ce bien est proposé par
L'IMMOBILIER PAR CHARLY
L'IMMOBILIER PAR CHARLY
Voir les biens de l'agence
5 Rue De L'evangile
75018 Paris 18
01 7 6 21 0 7 28
agence@limmobilierparcharly.com
www.limmobilierparcharly.com
Nos outils
Nous contacter pour ce bien

* champs obligatoire

Les informations communiquées sont destinées à "La Chambre FNAIM du Grand Paris" éditrice de ce site. Vous bénéficiez d'un droit d'accès, de modification, de rectification et de suppression de vos données personnelles (Loi n°2004-575 du 21 juin 2004 pour la confiance dans l'économie numérique). Pour les exercer, adressez vous à l’adresse de l’Editeur.

Partager ce
bien
Partager ce
bien

* champs obligatoire

Les informations communiquées sont destinées à "La Chambre FNAIM du Grand Paris" éditrice de ce site. Vous bénéficiez d'un droit d'accès, de modification, de rectification et de suppression de vos données personnelles (Loi n°2004-575 du 21 juin 2004 pour la confiance dans l'économie numérique). Pour les exercer, adressez vous à l’adresse de l’Editeur.

Calculatrice financière
Mensualités :

* Champs obligatoires

Ces biens
peuvent vous intéresser

  • Vente
    Appartement
    75018 paris 18
    315 000 €
  • Vente
    Appartement
    75018 paris 18
    277 000 €
  • Vente
    Appartement
    75018 paris 18
    525 000 €
Fnaim-
  • Contact
  • Partenaires
  • IMMOCV
  • Liens utiles
EXTRANET Déposer un avis

© 2026 | Tous droits réservés |

  • Plan du site
  • Mentions légales
  • Partenaires
  • Contact
  • Contact DPO
27bis, avenue de Villiers, 75017 PARIS
Réalisé par

Comme beaucoup, notre site utilise les cookies

On aimerait vous accompagner pendant votre visite. En poursuivant, vous acceptez l'utilisation des cookies par ce site, afin de vous proposer des contenus adaptés et réaliser des statistiques !

Paramétrer

Cookies fonctionnelsCes cookies sont indispensables à la navigation sur le site, pour vous garantir un fonctionnement optimal. Ils ne peuvent donc pas être désactivés.

Statistiques de visitesPour améliorer votre expérience, on a besoin de savoir ce qui vous intéresse !
Les données récoltées sont anonymisées.

?

Google Analytics

Annonces personnaliséesOn garde le contact ? Ces cookies nous permettent de vous proposer des contenus publicitaires adaptés à vos centres d'intérêts.

?

Google Ads

?

Facebook Pixel

?

Youtube

En savoir plus