Sélection
0
ADHÉRER À LA FNAIM GRAND PARIS Extranet
Fnaim-75
  • Accueil
  • Qui sommes-nous
    • Qui sommes-nous?
    • Etudes économiques
    • Formations
    • Conseils juridiques
  • Vos outils
    • FNAIM Légal by Modelo
    • Hub FNAIM
    • Extranet FNAIM Grand Paris
    • Centrale d'achat
    • Baromètre des prix
    • Observatoire des loyers
    • ImmoCV
  • Partenaires
  • Actualités
    • Évènements
    • Vidéos
    • Presse
    • Revue professions immobilières
    • Lettre votre patrimoine
    • Observatoires
    • Actualités juridiques
    • Nouveaux adhérents
  • Trouver une agence
  • Carte d'attractivité
VotreRecherche
Dans un rayon de
Budget
Entre € et €
Entre
et
Min. €
Max. €
Surface
Entre m2 et m2
Min. m2
Max. m2
Pièces
Entre pièces et pièces
Min. pièces
Max. pièces
  1. Accueil
  2. Paris 19
  3. Vente
  4. Appartement
  5. 3 Pièces - 69m²
< Retour

Appartement
3 Pièces 69 m²

Paris 19 - 75019

460 000 €
Descriptif du bien
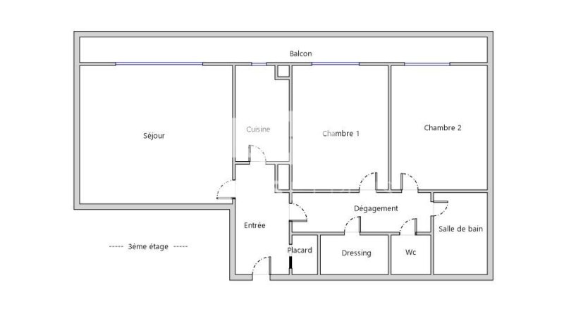
EXCLUSIVITE - PARIS (75019), Quartier Flandre-Aubervilliers / Villa Curial - A 5 min du métro Riquet (ligne 7), à proximité des crèches, écoles, commerces et espaces verts. Au sein d'une résidence sécurisée, bel appartement de 69,33 m2 Carrez au 3ème étage/10 avec ascenseur offrant une vue dégagée sur les jardins de la résidence. Il se compose d'une entrée, d'une grande pièce de séjour avec un balcon (exposition sud/ouest), 1 cuisine séparée aménagée et équipée, 2 CHAMBRES, nombreux rangements, 1salle d'eau, 1 grand dressing, toilettes séparés. 1 cave (niveau -1) accessible et 1 box au niveau -2 directement accessibles par l'ascenseur complètent le bien. CALME et LUMINEUX, vue dégagée, nombreux rangements. Rafraîchissement à prévoir. Chauffage collectif au gaz, double vitrage, DPE D, gardien. Au cœur du quartier Flandre, la résidence est idéalement située à proximité immédiate de toutes les commodités : écoles mitoyennes à la résidence, commerces, loisirs avec le Centre culturel Le 104 à 3 minutes à pied ou Le Bassin de la Villette à quelques minutes. Transports : Ligne 7 : métro Riquet à 400m, Crimée à 500m Bus Mathis à 200m, Curial - Archereau à 200m et Riquet à 300m Prix TTC et Honoraires à charge vendeur TTC Agent commercial Les informations sur les risques auxquels ce bien est exposé sont disponibles sur le site georisques.gouv.fr
Détails du bien
  • Superficie (m²) 69
  • Code postal 75019
  • Nombre de chambre(s) 2
  • Nombre de pièces 3
Diagnostic de
performances énergétiques
DPE
GES
Ce bien est proposé par
5 PIECES ET PLUS
5 PIECES ET PLUS
Voir les biens de l'agence
3 Bis Rue Louise Michel
92300 Levallois Perret
06 6 3 55 6 6 08
caroline.logeais@5piecesetplus.com
www.5piecesetplus.com
Nos outils
Nous contacter pour ce bien

* champs obligatoire

Les informations communiquées sont destinées à "La Chambre FNAIM du Grand Paris" éditrice de ce site. Vous bénéficiez d'un droit d'accès, de modification, de rectification et de suppression de vos données personnelles (Loi n°2004-575 du 21 juin 2004 pour la confiance dans l'économie numérique). Pour les exercer, adressez vous à l’adresse de l’Editeur.

Partager ce
bien
Partager ce
bien

* champs obligatoire

Les informations communiquées sont destinées à "La Chambre FNAIM du Grand Paris" éditrice de ce site. Vous bénéficiez d'un droit d'accès, de modification, de rectification et de suppression de vos données personnelles (Loi n°2004-575 du 21 juin 2004 pour la confiance dans l'économie numérique). Pour les exercer, adressez vous à l’adresse de l’Editeur.

Calculatrice financière
Mensualités :

* Champs obligatoires

Ces biens
peuvent vous intéresser

  • Vente
    Appartement
    75019 paris 19
    420 000 €
  • Vente
    Appartement
    75019 paris 19
    623 000 €
  • Vente
    Appartement
    75019 paris 19
    215 000 €
Fnaim-
  • Contact
  • Partenaires
  • IMMOCV
  • Liens utiles
EXTRANET Déposer un avis

© 2026 | Tous droits réservés |

  • Plan du site
  • Mentions légales
  • Partenaires
  • Contact
  • Contact DPO
27bis, avenue de Villiers, 75017 PARIS
Réalisé par

Comme beaucoup, notre site utilise les cookies

On aimerait vous accompagner pendant votre visite. En poursuivant, vous acceptez l'utilisation des cookies par ce site, afin de vous proposer des contenus adaptés et réaliser des statistiques !

Paramétrer

Cookies fonctionnelsCes cookies sont indispensables à la navigation sur le site, pour vous garantir un fonctionnement optimal. Ils ne peuvent donc pas être désactivés.

Statistiques de visitesPour améliorer votre expérience, on a besoin de savoir ce qui vous intéresse !
Les données récoltées sont anonymisées.

?

Google Analytics

Annonces personnaliséesOn garde le contact ? Ces cookies nous permettent de vous proposer des contenus publicitaires adaptés à vos centres d'intérêts.

?

Google Ads

?

Facebook Pixel

?

Youtube

En savoir plus