Sélection
0
ADHÉRER À LA FNAIM GRAND PARIS Extranet
Fnaim-75
  • Accueil
  • Qui sommes-nous
    • Qui sommes-nous?
    • Etudes économiques
    • Formations
    • Conseils juridiques
  • Vos outils
    • FNAIM Légal by Modelo
    • Hub FNAIM
    • Extranet FNAIM Grand Paris
    • Centrale d'achat
    • Baromètre des prix
    • Observatoire des loyers
    • ImmoCV
  • Partenaires
  • Actualités
    • Évènements
    • Vidéos
    • Presse
    • Revue professions immobilières
    • Lettre votre patrimoine
    • Observatoires
    • Actualités juridiques
    • Nouveaux adhérents
  • Trouver une agence
  • Carte d'attractivité
VotreRecherche
Dans un rayon de
Budget
Entre € et €
Entre
et
Min. €
Max. €
Surface
Entre m2 et m2
Min. m2
Max. m2
Pièces
Entre pièces et pièces
Min. pièces
Max. pièces
  1. Accueil
  2. Paris 20
  3. Vente
  4. Appartement
  5. 2 Pièces - 20m²
< Retour

Appartement
2 Pièces 20 m²

Paris 20 - 75020

185 000 €
Descriptif du bien
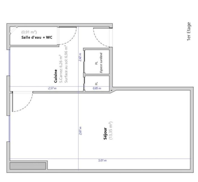
Situé au Impasse Rolleboise - Rue des Vignoles 75020 Au sein d'une impasse paisible cet appartement de deux pièces bénéficie d'une exposition Sud-Ouest offrant une belle luminosité tout au long de la journée. D'une surface de 20,52 m² loi Carrez 21,37 m² au sol il se trouve au 1er étage d'un immeuble ancien. Il se compose d'une salle d'eau avec WC, d'une cuisine, une pièce de vie ou de nuit ! Quelques travaux sont à prévoir vous permettant d'aménager le bien selon vos envies. Vous profiterez d'un environnement agréable avec une véritable vie de quartier et des commerces et marchés à proximité. DPE D, charges mensuelles de 65 € calme et lumineux ce bien est idéal pour un premier achat ou un investissement locatif ! Visitez le sans trop tarder... Référence agence : 4725
Détails du bien
  • Superficie (m²) 20
  • Code postal 75020
  • Nombre de chambre(s) 1
  • Nombre de pièces 2
  • Nb de salle de bain 1
Diagnostic de
performances énergétiques
DPE
GES
Ce bien est proposé par
ORPI IMMO CONSEILS PARIS
ORPI IMMO CONSEILS PARIS
Voir les biens de l'agence
33 Boulevard De Charonne
75011 Paris 11
01 55 25 52 00
immoconseilsparis@orpi.com
WWW.ORPI.COM/IMMOCONSEILSPARIS
Nos outils
Nous contacter pour ce bien

* champs obligatoire

Les informations communiquées sont destinées à "La Chambre FNAIM du Grand Paris" éditrice de ce site. Vous bénéficiez d'un droit d'accès, de modification, de rectification et de suppression de vos données personnelles (Loi n°2004-575 du 21 juin 2004 pour la confiance dans l'économie numérique). Pour les exercer, adressez vous à l’adresse de l’Editeur.

Partager ce
bien
Partager ce
bien

* champs obligatoire

Les informations communiquées sont destinées à "La Chambre FNAIM du Grand Paris" éditrice de ce site. Vous bénéficiez d'un droit d'accès, de modification, de rectification et de suppression de vos données personnelles (Loi n°2004-575 du 21 juin 2004 pour la confiance dans l'économie numérique). Pour les exercer, adressez vous à l’adresse de l’Editeur.

Calculatrice financière
Mensualités :

* Champs obligatoires

Ces biens
peuvent vous intéresser

  • Vente
    Appartement
    75020 paris 20
    222 500 €
  • Vente
    Appartement
    75020 paris 20
    998 500 €
  • Vente
    Appartement
    75020 paris 20
    266 000 €
Fnaim-
  • Contact
  • Partenaires
  • IMMOCV
  • Liens utiles
EXTRANET Déposer un avis

© 2026 | Tous droits réservés |

  • Plan du site
  • Mentions légales
  • Partenaires
  • Contact
  • Contact DPO
27bis, avenue de Villiers, 75017 PARIS
Réalisé par

Comme beaucoup, notre site utilise les cookies

On aimerait vous accompagner pendant votre visite. En poursuivant, vous acceptez l'utilisation des cookies par ce site, afin de vous proposer des contenus adaptés et réaliser des statistiques !

Paramétrer

Cookies fonctionnelsCes cookies sont indispensables à la navigation sur le site, pour vous garantir un fonctionnement optimal. Ils ne peuvent donc pas être désactivés.

Statistiques de visitesPour améliorer votre expérience, on a besoin de savoir ce qui vous intéresse !
Les données récoltées sont anonymisées.

?

Google Analytics

Annonces personnaliséesOn garde le contact ? Ces cookies nous permettent de vous proposer des contenus publicitaires adaptés à vos centres d'intérêts.

?

Google Ads

?

Facebook Pixel

?

Youtube

En savoir plus