Sélection
0
ADHÉRER À LA FNAIM GRAND PARIS Extranet
Fnaim-75
  • Accueil
  • Qui sommes-nous
    • Qui sommes-nous?
    • Etudes économiques
    • Formations
    • Conseils juridiques
  • Vos outils
    • FNAIM Légal by Modelo
    • Hub FNAIM
    • Extranet FNAIM Grand Paris
    • Centrale d'achat
    • Baromètre des prix
    • Observatoire des loyers
    • ImmoCV
  • Partenaires
  • Actualités
    • Évènements
    • Vidéos
    • Presse
    • Revue professions immobilières
    • Lettre votre patrimoine
    • Observatoires
    • Actualités juridiques
    • Nouveaux adhérents
  • Trouver une agence
  • Carte d'attractivité
VotreRecherche
Dans un rayon de
Budget
Entre € et €
Entre
et
Min. €
Max. €
Surface
Entre m2 et m2
Min. m2
Max. m2
Pièces
Entre pièces et pièces
Min. pièces
Max. pièces
  1. Accueil
  2. Douvaine
  3. 6 Pièces - 205m²
< Retour

Maison
6 Pièces 205 m²

Douvaine - 74140

650 000 €
Descriptif du bien
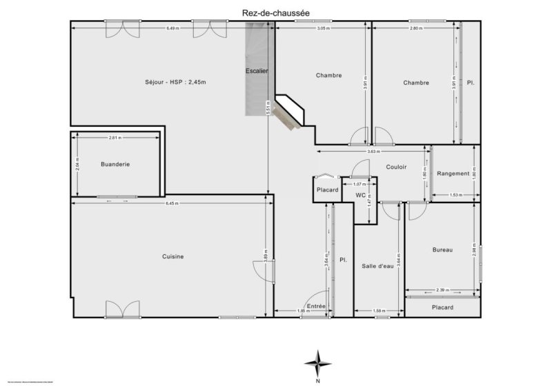
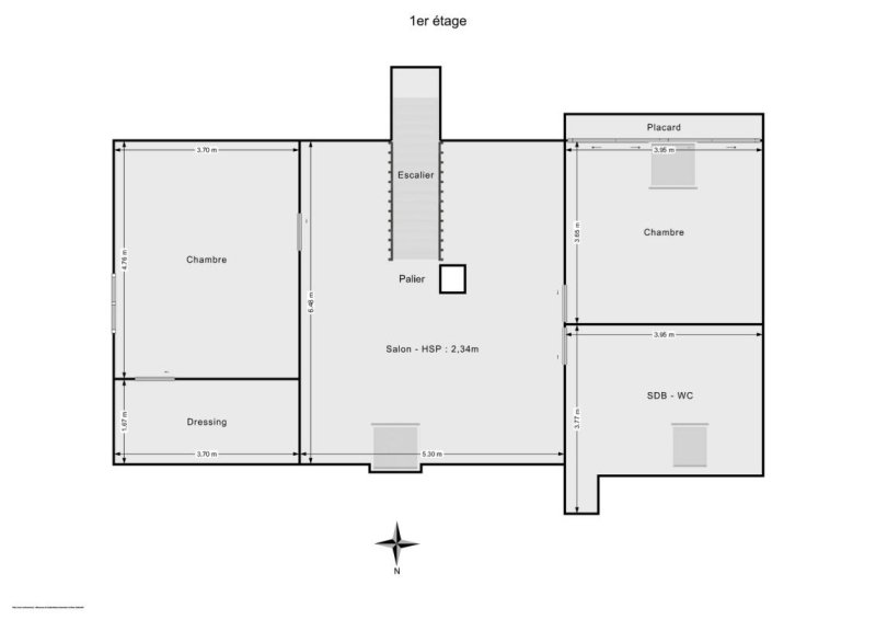
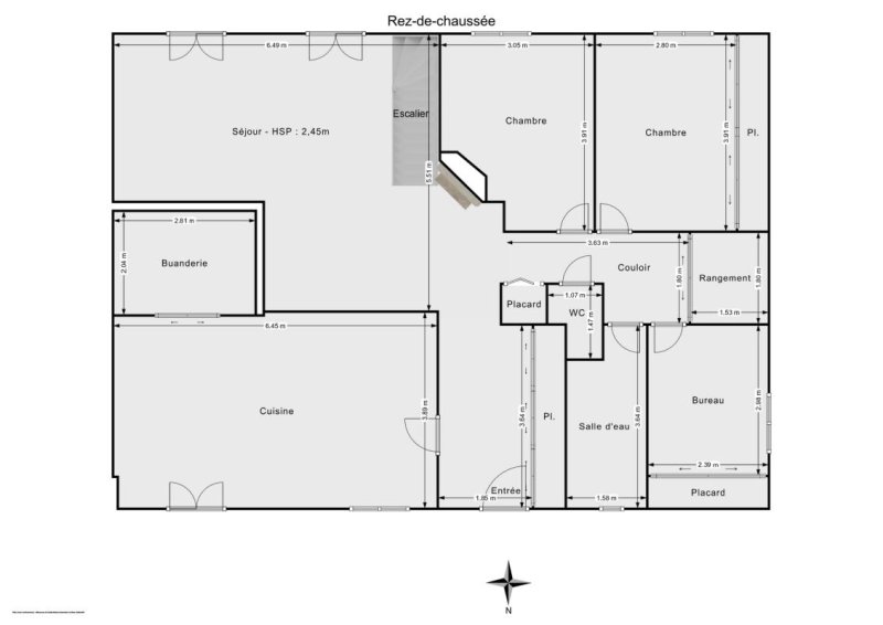
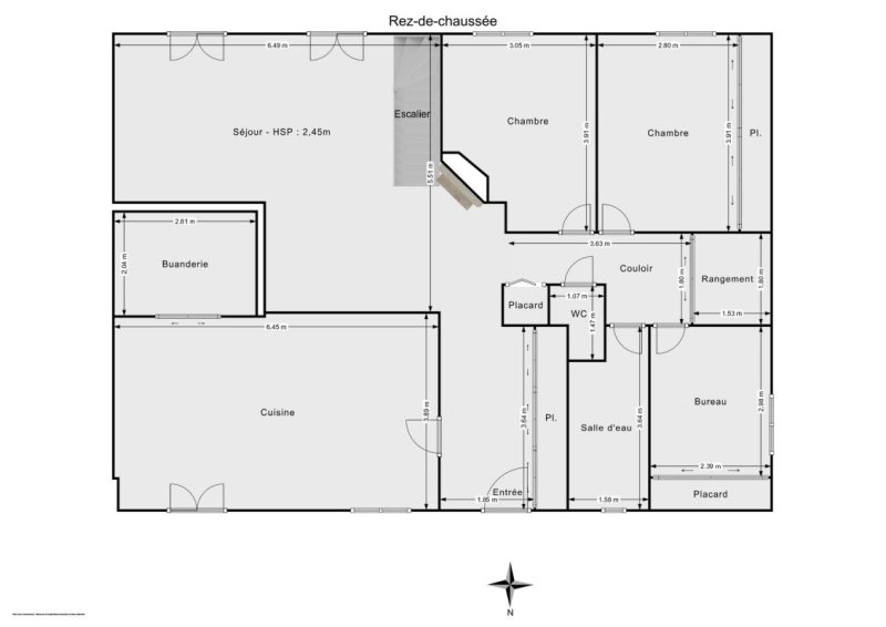
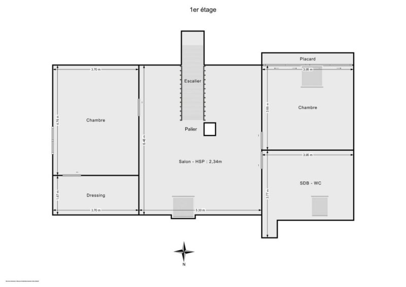
Mickaël et Liberkeys vous proposent cette spacieuse maison familiale de 180 m² située à Douvaine, dans un lotissement résidentiel recherché, nichée sur un terrain arboré de 1262 m² avec bassin. Un étang à carpes Koï au fond du jardin, une cheminée qui crépite en hiver, cinq chambres pour toute la famille : certaines maisons ne se décrivent pas, elles se ressentent. Un équilibre rare entre nature apaisante et confort du quotidien, à quelques minutes de la frontière suisse. Les atouts de ce bien : -Beaux volumes : 180 m² habitable (205 m² au total) avec 5 chambres, dont 2 de plain-pied pour une accessibilité totale. -Pompe à chaleur + panneaux solaires (DPE C / GES B) -- une maison économe sur le long terme, avec des charges de chauffage sensiblement maîtrisées dès la première année. -Espaces de vie : Cuisine dinatoire de 24 m² et grand séjour -Étang à carpes Koï + terrain de 1 407m² avec terrasse -- un extérieur soigné et apaisant, pensé comme un vrai espace de vie, pas seulement un jardin à entretenir. -Stationnement : Carport extérieur et nombreux espaces de stationnement. À propos du secteur : Douvaine s'impose comme l'une des adresses les plus prisées du Chablais côté français. À moins de 20 kilomètres de Genève et bien reliée aux axes franco-suisses (N206, A40), la commune attire une clientèle d'actifs frontaliers en quête d'espace, de verdure et d'un cadre familial que le marché genevois ne peut plus offrir. Commerces, écoles et services à proximité immédiate : tout est réuni pour s'installer durablement, les pieds dans le Chablais, les yeux sur les Alpes. Visite virtuelle disponible sur demande Taxe foncière : 1 482 € par an. Montant estimé des dépenses annuelles d'énergie pour un usage standard : entre 2 310 € et 3 210 € par an. Prix moyens des énergies indexés sur l'année 2023 (abonnements compris). Ce bien vous plaît ? Visitez-le virtuellement en 3D sur le site de Liberkeys ou contactez directement votre conseiller. Ferreira Mickaël, agent commercial immatriculé au RSAC de Thonon-les-Bains sous le numéro 894 967 181. Référence annonce : DOM26265. Date de réalisation du diagnostic : 02/01/2026. Les honoraires sont à la charge du vendeur. Les informations sur les risques auxquels ce bien est exposé sont disponibles sur le site Géorisques : https://www.georisques.gouv.fr
Détails du bien
  • Superficie (m²) 205
  • Code postal 74140
  • Nombre de chambre(s) 5
  • Nombre de pièces 6
  • Nb de salle de bain 1
Diagnostic de
performances énergétiques
DPE
GES
Ce bien est proposé par
WALLKEYS
WALLKEYS
Voir les biens de l'agence
20 Rue De Montholon
75009 Paris 09
01 8 2 88 0 9 93
mael@liberkeys.com
www.liberkeys.com
Nos outils
Nous contacter pour ce bien

* champs obligatoire

Les informations communiquées sont destinées à "La Chambre FNAIM du Grand Paris" éditrice de ce site. Vous bénéficiez d'un droit d'accès, de modification, de rectification et de suppression de vos données personnelles (Loi n°2004-575 du 21 juin 2004 pour la confiance dans l'économie numérique). Pour les exercer, adressez vous à l’adresse de l’Editeur.

Partager ce
bien
Partager ce
bien

* champs obligatoire

Les informations communiquées sont destinées à "La Chambre FNAIM du Grand Paris" éditrice de ce site. Vous bénéficiez d'un droit d'accès, de modification, de rectification et de suppression de vos données personnelles (Loi n°2004-575 du 21 juin 2004 pour la confiance dans l'économie numérique). Pour les exercer, adressez vous à l’adresse de l’Editeur.

Calculatrice financière
Mensualités :

* Champs obligatoires

Ces biens
peuvent vous intéresser

  • Vente
    Maison
    74200 thonon les bains
    635 000 €
  • Vente
    Maison
    74360 bonnevaux
    795 000 €
Fnaim-
  • Contact
  • Partenaires
  • IMMOCV
  • Liens utiles
EXTRANET Déposer un avis

© 2026 | Tous droits réservés |

  • Plan du site
  • Mentions légales
  • Partenaires
  • Contact
  • Contact DPO
27bis, avenue de Villiers, 75017 PARIS
Réalisé par

Comme beaucoup, notre site utilise les cookies

On aimerait vous accompagner pendant votre visite. En poursuivant, vous acceptez l'utilisation des cookies par ce site, afin de vous proposer des contenus adaptés et réaliser des statistiques !

Paramétrer

Cookies fonctionnelsCes cookies sont indispensables à la navigation sur le site, pour vous garantir un fonctionnement optimal. Ils ne peuvent donc pas être désactivés.

Statistiques de visitesPour améliorer votre expérience, on a besoin de savoir ce qui vous intéresse !
Les données récoltées sont anonymisées.

?

Google Analytics

Annonces personnaliséesOn garde le contact ? Ces cookies nous permettent de vous proposer des contenus publicitaires adaptés à vos centres d'intérêts.

?

Google Ads

?

Facebook Pixel

?

Youtube

En savoir plus