Sélection
0
ADHÉRER À LA FNAIM GRAND PARIS Extranet
Fnaim-75
  • Accueil
  • Qui sommes-nous
    • Qui sommes-nous?
    • Etudes économiques
    • Formations
    • Conseils juridiques
  • Vos outils
    • FNAIM Légal by Modelo
    • Hub FNAIM
    • Extranet FNAIM Grand Paris
    • Centrale d'achat
    • Baromètre des prix
    • Observatoire des loyers
    • ImmoCV
  • Partenaires
  • Actualités
    • Évènements
    • Vidéos
    • Presse
    • Revue professions immobilières
    • Lettre votre patrimoine
    • Observatoires
    • Actualités juridiques
    • Nouveaux adhérents
  • Trouver une agence
  • Carte d'attractivité
VotreRecherche
Dans un rayon de
Budget
Entre € et €
Entre
et
Min. €
Max. €
Surface
Entre m2 et m2
Min. m2
Max. m2
Pièces
Entre pièces et pièces
Min. pièces
Max. pièces
  1. Accueil
  2. Drancy
  3. 3 Pièces - 60m²
< Retour

Maison
3 Pièces 60 m²

Drancy - 93700

238 000 €
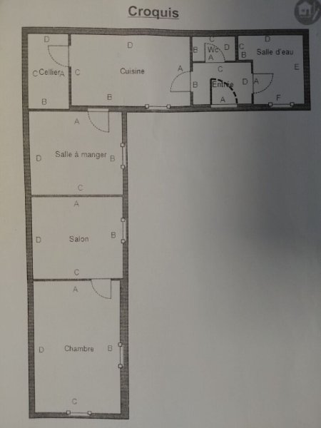
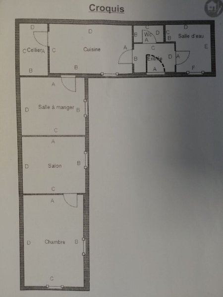
Descriptif du bien
CPH IMMOBILIER Paris 18 vous propose cette jolie maison de plain-pied, idéalement située dans le quartier prisé de la Mare, à deux pas des commerces. Elle se compose d'une entrée, d'une cuisine aménagée, d'un séjour double lumineux, d'une chambre, d'une salle d'eau et d'un WC indépendant. À l'extérieur, vous profiterez d'un jardin agréable et bien exposé, permettant de stationner plusieurs véhicules. Vous apprécierez le calme du secteur, la luminosité des pièces et la proximité des commodités. Idéale pour un premier achat ou pour des personnes recherchant une maison fonctionnelle et sans escalier. Montant estimé des dépenses : entre 1.230 Euro et 1.710 Euro - année de référence 2023 Logement à consommation énergétique : Classé "E" Les informations sur les risques auxquels ce bien est exposé sont disponibles sur le site Géorisques : www.georisques.gouv.fr N'hésitez pas à prendre contact avec Martin STEPANYAN - Agence CPH IMMOBILIER PARIS 18
Détails du bien
  • Superficie (m²) 60
  • Code postal 93700
  • Nombre de chambre(s) 1
  • Nombre de pièces 3
Diagnostic de
performances énergétiques
DPE
GES
Ce bien est proposé par
CPH PARIS 18
CPH PARIS 18
Voir les biens de l'agence
104 Rue Ordener
75018 Paris 18
01 5 3 09 9 1 91
paris18@cph.fr
WWW.CPH.FR
Nos outils
Nous contacter pour ce bien

* champs obligatoire

Les informations communiquées sont destinées à "La Chambre FNAIM du Grand Paris" éditrice de ce site. Vous bénéficiez d'un droit d'accès, de modification, de rectification et de suppression de vos données personnelles (Loi n°2004-575 du 21 juin 2004 pour la confiance dans l'économie numérique). Pour les exercer, adressez vous à l’adresse de l’Editeur.

Partager ce
bien
Partager ce
bien

* champs obligatoire

Les informations communiquées sont destinées à "La Chambre FNAIM du Grand Paris" éditrice de ce site. Vous bénéficiez d'un droit d'accès, de modification, de rectification et de suppression de vos données personnelles (Loi n°2004-575 du 21 juin 2004 pour la confiance dans l'économie numérique). Pour les exercer, adressez vous à l’adresse de l’Editeur.

Calculatrice financière
Mensualités :

* Champs obligatoires

Ces biens
peuvent vous intéresser

  • Vente
    Maison
    93700 drancy
    699 000 €
  • Vente
    Maison
    93700 drancy
    585 000 €
  • Vente
    Maison
    93700 drancy
    465 000 €
Fnaim-
  • Contact
  • Partenaires
  • IMMOCV
  • Liens utiles
EXTRANET Déposer un avis

© 2026 | Tous droits réservés |

  • Plan du site
  • Mentions légales
  • Partenaires
  • Contact
  • Contact DPO
27bis, avenue de Villiers, 75017 PARIS
Réalisé par

Comme beaucoup, notre site utilise les cookies

On aimerait vous accompagner pendant votre visite. En poursuivant, vous acceptez l'utilisation des cookies par ce site, afin de vous proposer des contenus adaptés et réaliser des statistiques !

Paramétrer

Cookies fonctionnelsCes cookies sont indispensables à la navigation sur le site, pour vous garantir un fonctionnement optimal. Ils ne peuvent donc pas être désactivés.

Statistiques de visitesPour améliorer votre expérience, on a besoin de savoir ce qui vous intéresse !
Les données récoltées sont anonymisées.

?

Google Analytics

Annonces personnaliséesOn garde le contact ? Ces cookies nous permettent de vous proposer des contenus publicitaires adaptés à vos centres d'intérêts.

?

Google Ads

?

Facebook Pixel

?

Youtube

En savoir plus