Sélection
0
ADHÉRER À LA FNAIM GRAND PARIS Extranet
Fnaim-75
  • Accueil
  • Qui sommes-nous
    • Qui sommes-nous?
    • Etudes économiques
    • Formations
    • Conseils juridiques
  • Vos outils
    • FNAIM Légal by Modelo
    • Hub FNAIM
    • Extranet FNAIM Grand Paris
    • Centrale d'achat
    • Baromètre des prix
    • Observatoire des loyers
    • ImmoCV
  • Partenaires
  • Actualités
    • Évènements
    • Vidéos
    • Presse
    • Revue professions immobilières
    • Lettre votre patrimoine
    • Observatoires
    • Actualités juridiques
    • Nouveaux adhérents
  • Trouver une agence
  • Carte d'attractivité
VotreRecherche
Dans un rayon de
Budget
Entre € et €
Entre
et
Min. €
Max. €
Surface
Entre m2 et m2
Min. m2
Max. m2
Pièces
Entre pièces et pièces
Min. pièces
Max. pièces
  1. Accueil
  2. Landas
  3. 5 Pièces - 130m²
< Retour

Maison
5 Pièces 130 m²

Landas - 59310

355 000 €
Descriptif du bien
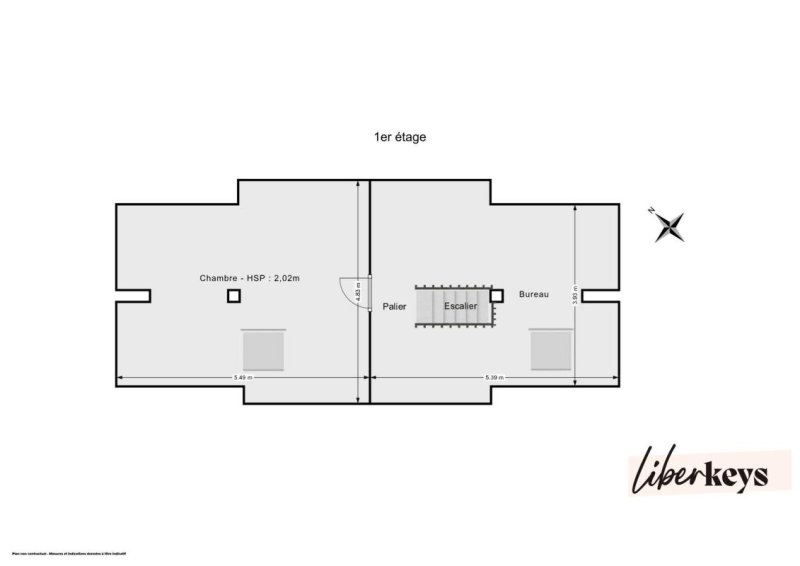
EXCLUSIVITÉ - Maison semi plain-pied Située dans un environnement calme et verdoyant, découvrez cette agréable maison offrant un cadre de vie idéal pour les amoureux de nature et de tranquillité. Son emplacement privilégié permet un accès rapide à l'axe Lille / Valenciennes, avec la gare à seulement 5 minutes en voiture. La maison dispose d'un bel espace de vie lumineux, prolongé par une véranda tournée vers le jardin, idéale pour profiter de la lumière naturelle toute l'année. Elle comprend 3 chambres confortables ainsi qu'un espace à l'étage offrant de multiples possibilités : bureau, salle de jeux, chambre d'appoint ou télétravail. Fonctionnelle et bien agencée, elle bénéficie également d'une buanderie et d'un double garage. À l'extérieur, vous profiterez d'un jardin arboré et entretenu, dans un environnement paisible et recherché. Assainissement individuel (non raccordé au tout-à-l'égout) Les atouts : Belle pièce de vie lumineuse Véranda agréable ouverte sur le jardin 3 chambres + espace modulable à l'étage Buanderie fonctionnelle Double garage Accès rapide Lille / Valenciennes À visiter sans tarder ! Ce bien vous plaît ? contactez moi directement. Amélie Bartolomei, agent commercial immatriculé au RSAC de Douai sous le numéro 100 181 155. DOM28938. Les honoraires sont à la charge du vendeur.
Détails du bien
  • Superficie (m²) 130
  • Code postal 59310
  • Nombre de chambre(s) 3
  • Nombre de pièces 5
Diagnostic de
performances énergétiques
DPE
GES
Ce bien est proposé par
WALLKEYS
WALLKEYS
Voir les biens de l'agence
20 Rue De Montholon
75009 Paris 09
01 8 2 88 0 9 93
mael@liberkeys.com
www.liberkeys.com
Nos outils
Nous contacter pour ce bien

* champs obligatoire

Les informations communiquées sont destinées à "La Chambre FNAIM du Grand Paris" éditrice de ce site. Vous bénéficiez d'un droit d'accès, de modification, de rectification et de suppression de vos données personnelles (Loi n°2004-575 du 21 juin 2004 pour la confiance dans l'économie numérique). Pour les exercer, adressez vous à l’adresse de l’Editeur.

Partager ce
bien
Partager ce
bien

* champs obligatoire

Les informations communiquées sont destinées à "La Chambre FNAIM du Grand Paris" éditrice de ce site. Vous bénéficiez d'un droit d'accès, de modification, de rectification et de suppression de vos données personnelles (Loi n°2004-575 du 21 juin 2004 pour la confiance dans l'économie numérique). Pour les exercer, adressez vous à l’adresse de l’Editeur.

Calculatrice financière
Mensualités :

* Champs obligatoires

Ces biens
peuvent vous intéresser

  • Vente
    Maison
    59220 denain
    295 000 €
  • Vente
    Maison
    59293 neuville sur escaut
    217 000 €
  • Vente
    Maison
    59300 valenciennes
    193 500 €
Fnaim-
  • Contact
  • Partenaires
  • IMMOCV
  • Liens utiles
EXTRANET Déposer un avis

© 2026 | Tous droits réservés |

  • Plan du site
  • Mentions légales
  • Partenaires
  • Contact
  • Contact DPO
27bis, avenue de Villiers, 75017 PARIS
Réalisé par

Comme beaucoup, notre site utilise les cookies

On aimerait vous accompagner pendant votre visite. En poursuivant, vous acceptez l'utilisation des cookies par ce site, afin de vous proposer des contenus adaptés et réaliser des statistiques !

Paramétrer

Cookies fonctionnelsCes cookies sont indispensables à la navigation sur le site, pour vous garantir un fonctionnement optimal. Ils ne peuvent donc pas être désactivés.

Statistiques de visitesPour améliorer votre expérience, on a besoin de savoir ce qui vous intéresse !
Les données récoltées sont anonymisées.

?

Google Analytics

Annonces personnaliséesOn garde le contact ? Ces cookies nous permettent de vous proposer des contenus publicitaires adaptés à vos centres d'intérêts.

?

Google Ads

?

Facebook Pixel

?

Youtube

En savoir plus