Sélection
0
ADHÉRER À LA FNAIM GRAND PARIS Extranet
Fnaim-75
  • Accueil
  • Qui sommes-nous
    • Qui sommes-nous?
    • Etudes économiques
    • Formations
    • Conseils juridiques
  • Vos outils
    • FNAIM Légal by Modelo
    • Hub FNAIM
    • Extranet FNAIM Grand Paris
    • Centrale d'achat
    • Baromètre des prix
    • Observatoire des loyers
    • ImmoCV
  • Partenaires
  • Actualités
    • Évènements
    • Vidéos
    • Presse
    • Revue professions immobilières
    • Lettre votre patrimoine
    • Observatoires
    • Actualités juridiques
    • Nouveaux adhérents
  • Trouver une agence
  • Carte d'attractivité
VotreRecherche
Dans un rayon de
Budget
Entre € et €
Entre
et
Min. €
Max. €
Surface
Entre m2 et m2
Min. m2
Max. m2
Pièces
Entre pièces et pièces
Min. pièces
Max. pièces
  1. Accueil
  2. St Denis
  3. 4 Pièces - 85m²
< Retour

Maison
4 Pièces 85 m²

St Denis - 93200

279 000 €
Descriptif du bien
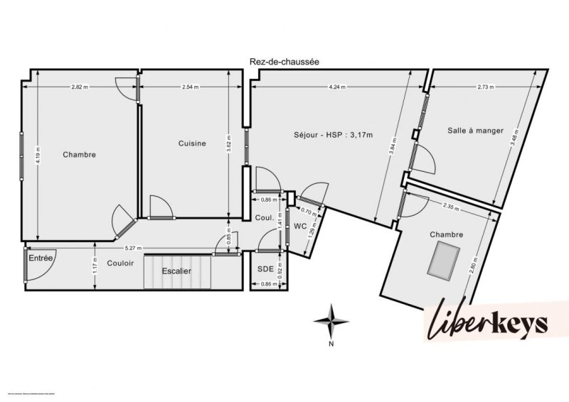
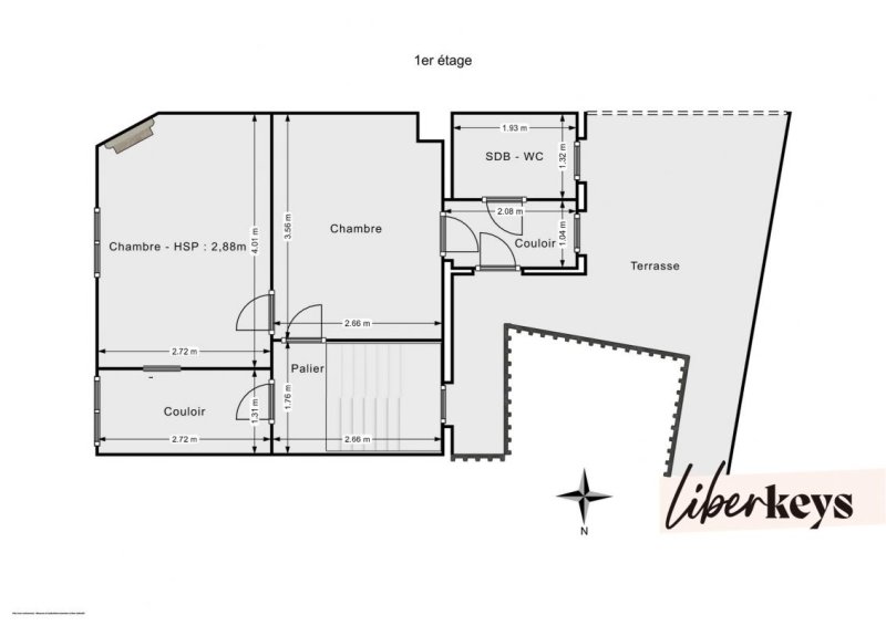
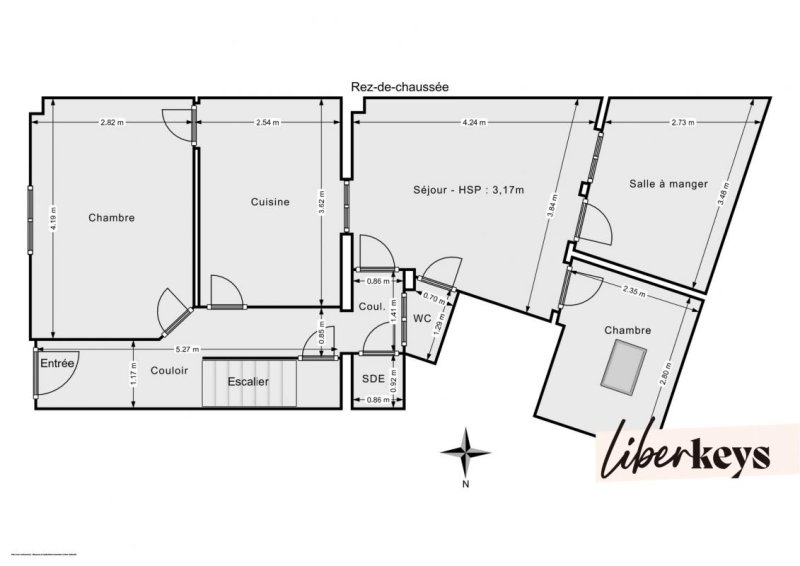
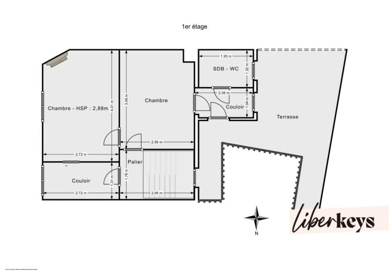
!!!ATTENTION PHOTOS SANS LOGO GENEREES AVEC IA!!!! Liberkeys, via son agent spécialisé du secteur M. Nicolas Vallée vous propose de découvrir cette charmante maison à rénover entièrement de 85 m² située dans un quartier paisible de Saint-Denis. Idéalement placée à proximité du métro Pleyel, accessible en seulement 600 mètres, cette propriété séduira aussi bien les familles que les investisseurs en quête d'un cadre de vie agréable et pratique. Maison comportant des travaux, nombreuses possibilités. Devis effectués : entre 90.000€ et 150.000€ selon projet. Elle comprend: entrée sur courette, au rdc : entrée, une chambre, cuisine, salle à manger, wc, salle d'eau, 2 bureaux, accès sous sol (15m²). A l'étage : Cuisine, 2 chambres, une salle de bains avec wc, accès à la terrasse de 28m². Possibilité de tous réagencer, surélevé ou de créer 2 appartements. La localisation de cette maison est un véritable atout avec un accès rapide aux métros, commerces de proximité, restaurants et établissements scolaires de qualité. Les familles apprécieront la proximité avec les espaces verts, parfaits pour les sorties dominicales. L'atmosphère conviviale de ce quartier est renforcée par la dynamique culturelle de Saint-Denis, à deux pas de monuments historiques tels que la Basilique Saint-Denis, pour des enrichissements culturels au quotidien. Ce bien vous plaît ? Contactez directement votre conseiller. Référence annonce : DOM11501. Date de réalisation du diagnostic : 19/12/2023. Les honoraires sont à la charge du vendeur.
Détails du bien
  • Superficie (m²) 85
  • Code postal 93200
  • Nombre de chambre(s) 3
  • Nombre de pièces 4
  • Nb de salle de bain 1
Diagnostic de
performances énergétiques
DPE
GES
Ce bien est proposé par
WALLKEYS
WALLKEYS
Voir les biens de l'agence
20 Rue De Montholon
75009 Paris 09
01 8 2 88 0 9 93
mael@liberkeys.com
www.liberkeys.com
Nos outils
Nous contacter pour ce bien

* champs obligatoire

Les informations communiquées sont destinées à "La Chambre FNAIM du Grand Paris" éditrice de ce site. Vous bénéficiez d'un droit d'accès, de modification, de rectification et de suppression de vos données personnelles (Loi n°2004-575 du 21 juin 2004 pour la confiance dans l'économie numérique). Pour les exercer, adressez vous à l’adresse de l’Editeur.

Partager ce
bien
Partager ce
bien

* champs obligatoire

Les informations communiquées sont destinées à "La Chambre FNAIM du Grand Paris" éditrice de ce site. Vous bénéficiez d'un droit d'accès, de modification, de rectification et de suppression de vos données personnelles (Loi n°2004-575 du 21 juin 2004 pour la confiance dans l'économie numérique). Pour les exercer, adressez vous à l’adresse de l’Editeur.

Calculatrice financière
Mensualités :

* Champs obligatoires

Ces biens
peuvent vous intéresser

  • Vente
    Maison
    93200 st denis
    260 000 €
  • Vente
    Maison
    93200 st denis
    432 000 €
  • Vente
    Maison
    93200 st denis
    469 000 €
Fnaim-
  • Contact
  • Partenaires
  • IMMOCV
  • Liens utiles
EXTRANET Déposer un avis

© 2026 | Tous droits réservés |

  • Plan du site
  • Mentions légales
  • Partenaires
  • Contact
  • Contact DPO
27bis, avenue de Villiers, 75017 PARIS
Réalisé par

Comme beaucoup, notre site utilise les cookies

On aimerait vous accompagner pendant votre visite. En poursuivant, vous acceptez l'utilisation des cookies par ce site, afin de vous proposer des contenus adaptés et réaliser des statistiques !

Paramétrer

Cookies fonctionnelsCes cookies sont indispensables à la navigation sur le site, pour vous garantir un fonctionnement optimal. Ils ne peuvent donc pas être désactivés.

Statistiques de visitesPour améliorer votre expérience, on a besoin de savoir ce qui vous intéresse !
Les données récoltées sont anonymisées.

?

Google Analytics

Annonces personnaliséesOn garde le contact ? Ces cookies nous permettent de vous proposer des contenus publicitaires adaptés à vos centres d'intérêts.

?

Google Ads

?

Facebook Pixel

?

Youtube

En savoir plus