Sélection
0
ADHÉRER À LA FNAIM GRAND PARIS Extranet
Fnaim-75
  • Accueil
  • Qui sommes-nous
    • Qui sommes-nous?
    • Etudes économiques
    • Formations
    • Conseils juridiques
  • Vos outils
    • FNAIM Légal by Modelo
    • Hub FNAIM
    • Extranet FNAIM Grand Paris
    • Centrale d'achat
    • Baromètre des prix
    • Observatoire des loyers
    • ImmoCV
  • Partenaires
  • Actualités
    • Évènements
    • Vidéos
    • Presse
    • Revue professions immobilières
    • Lettre votre patrimoine
    • Observatoires
    • Actualités juridiques
    • Nouveaux adhérents
  • Trouver une agence
  • Carte d'attractivité
VotreRecherche
Dans un rayon de
Budget
Entre € et €
Entre
et
Min. €
Max. €
Surface
Entre m2 et m2
Min. m2
Max. m2
Pièces
Entre pièces et pièces
Min. pièces
Max. pièces
  1. Accueil
  2. Trevou Treguignec
  3. 5 Pièces - 110m²
< Retour

Maison
5 Pièces 110 m²

Trevou Treguignec - 22660

398 000 €
Descriptif du bien
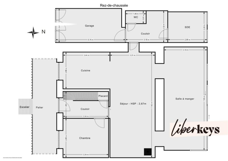
SOUS OFFRE ACCEPTÉE Située sur les hauteurs de Trestel à Trévou-Tréguignec, je vous propose cette charmante maison des années 30's, rénovée avec goût et par des professionnels du bâtiment. Avec une surface habitable de 110 m², elle bénéficie au rez-de-chaussée d'une chambre et d'une salle d'eau avec douche à l'italienne. D'une cuisine ouverte toute équipée, d'une salle à manger avec un poêle à pellets Aäsgard et d'un salon lumineux donnant sur le jardin. A l'étage, vous trouverez 2 jolies chambres en enfilade, chacune donnant accès sur un toit terrasse d'où vous pourrez apprécier une jolie vue mer. A l'étage, se trouve également un wc et un point d'eau ainsi qu'une pièce idéale pour un dressing, ou un espace jeux pour les enfants. Un garage et un petit sous-sol complètent l'ensemble. Le jardin est clos à l'avant et à l'arrière de la maison. Points clés: - Parcelle de 507m2 - Assainissement collectif aux normes - Chauffage chaudière fioul entretenue et fonctionnelle et poêle à pellets. - Toiture neuve - Portail électrique - Electricité aux normes - Taxe foncière : 806 €/an - Résidence à l'année / Maison de vacances / Investissement locatif Cette maison est prête à accueillir de nouveaux propriétaires à la recherche d'une résidence clé en main, proche du littoral et située dans une commune dynamique et agréable des Côtes-d'Armor. Montant estimé des dépenses annuelles d'énergie pour un usage standard : entre 1670 € et 2310 € par an. Prix moyens des énergies indexés sur l'année 2021 (abonnements compris). Ce bien vous plaît ? Visitez-le virtuellement en 3D sur le site de Liberkeys ou contactez directement votre conseiller. Loyer Stéphanie, agent commercial immatriculé au RSAC de Saint Brieuc sous le numéro 948 310 701. Référence annonce : DOM24410. Date de réalisation du diagnostic : 10/05/2024. Les honoraires sont à la charge de l'acheteur. Prix du bien 398 000€ / Prix du bien hors Honoraires: 382 692,31€ Honoraires TTC: 15 07,69€ (4%)
Détails du bien
  • Superficie (m²) 110
  • Code postal 22660
  • Nombre de chambre(s) 3
  • Nombre de pièces 5
Diagnostic de
performances énergétiques
DPE
GES
Ce bien est proposé par
WALLKEYS
WALLKEYS
Voir les biens de l'agence
20 Rue De Montholon
75009 Paris 09
01 8 2 88 0 9 93
mael@liberkeys.com
www.liberkeys.com
Nos outils
Nous contacter pour ce bien

* champs obligatoire

Les informations communiquées sont destinées à "La Chambre FNAIM du Grand Paris" éditrice de ce site. Vous bénéficiez d'un droit d'accès, de modification, de rectification et de suppression de vos données personnelles (Loi n°2004-575 du 21 juin 2004 pour la confiance dans l'économie numérique). Pour les exercer, adressez vous à l’adresse de l’Editeur.

Partager ce
bien
Partager ce
bien

* champs obligatoire

Les informations communiquées sont destinées à "La Chambre FNAIM du Grand Paris" éditrice de ce site. Vous bénéficiez d'un droit d'accès, de modification, de rectification et de suppression de vos données personnelles (Loi n°2004-575 du 21 juin 2004 pour la confiance dans l'économie numérique). Pour les exercer, adressez vous à l’adresse de l’Editeur.

Calculatrice financière
Mensualités :

* Champs obligatoires

Ces biens
peuvent vous intéresser

  • Vente
    Maison
    22660 trevou treguignec
    389 900 €
  • Vente
    Maison
    22710 penvenan
    312 000 €
  • Vente
    Maison
    22450 camlez
    168 500 €
Fnaim-
  • Contact
  • Partenaires
  • IMMOCV
  • Liens utiles
EXTRANET Déposer un avis

© 2026 | Tous droits réservés |

  • Plan du site
  • Mentions légales
  • Partenaires
  • Contact
  • Contact DPO
27bis, avenue de Villiers, 75017 PARIS
Réalisé par

Comme beaucoup, notre site utilise les cookies

On aimerait vous accompagner pendant votre visite. En poursuivant, vous acceptez l'utilisation des cookies par ce site, afin de vous proposer des contenus adaptés et réaliser des statistiques !

Paramétrer

Cookies fonctionnelsCes cookies sont indispensables à la navigation sur le site, pour vous garantir un fonctionnement optimal. Ils ne peuvent donc pas être désactivés.

Statistiques de visitesPour améliorer votre expérience, on a besoin de savoir ce qui vous intéresse !
Les données récoltées sont anonymisées.

?

Google Analytics

Annonces personnaliséesOn garde le contact ? Ces cookies nous permettent de vous proposer des contenus publicitaires adaptés à vos centres d'intérêts.

?

Google Ads

?

Facebook Pixel

?

Youtube

En savoir plus