Sélection
0
ADHÉRER À LA FNAIM GRAND PARIS Extranet
Fnaim-75
  • Accueil
  • Qui sommes-nous
    • Qui sommes-nous?
    • Etudes économiques
    • Formations
    • Conseils juridiques
  • Vos outils
    • FNAIM Légal by Modelo
    • Hub FNAIM
    • Extranet FNAIM Grand Paris
    • Centrale d'achat
    • Baromètre des prix
    • Observatoire des loyers
    • ImmoCV
  • Partenaires
  • Actualités
    • Évènements
    • Vidéos
    • Presse
    • Revue professions immobilières
    • Lettre votre patrimoine
    • Observatoires
    • Actualités juridiques
    • Nouveaux adhérents
  • Trouver une agence
  • Carte d'attractivité
VotreRecherche
Dans un rayon de
Budget
Entre € et €
Entre
et
Min. €
Max. €
Surface
Entre m2 et m2
Min. m2
Max. m2
Pièces
Entre pièces et pièces
Min. pièces
Max. pièces
  1. Accueil
  2. Decines Charpieu
  3. 49000m²
< Retour

Local industriel
49000 m²

Decines Charpieu - 69150

131 €
Descriptif du bien
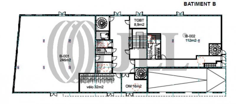
A LOUER / A VENDRE - Rhône (69) - Décines-Charpieu (69150) - Proche Lyon#@#JLL vous propose à la location ou à la vente un site mixte composé de plusieurs bâtiments destinés à des activités tertiaires et productives. La tranche 1 du Multipole de Décines sera composée de 4 bâtiments mixtes pour une surface totale de 12 500 m². Les bâtiments A et B seront à usage de bureaux et les bâtiments C et D seront destinés à la réalisation de clés en main avec une forte proportion de bureaux et activité légère en RDC.#@##@#Sur un terrain de 5,5ha, le Multipôle de Décines dispose de 50 000 m² divisibles dédiés, à parité, à une pluralité d’activités tertiaires et productives.#@#L’ensemble immobilier composé d’une douzaine de bâtiments répond de manière précise aux différentes demandes des entreprises, autant en terme de destination de bâtiments (tertiaire, activité, mixte) que de typologie de surfaces.#@#Mixité fonctionnelle, efficacité énergétique, qualité architecturale… ici, une place privilégiée s’offre aux utilisateurs désireux de rendre leur implantation visible et signifiante.#@#Le Multipôle de Décines bénéficiera d'une desserte privilégiée, aussi bien par les grands axes routiers que par les transports en commun de Lyon.#@##@#Les informations sur les risques auxquels ce bien est exposé sont disponibles sur le site Géorisques : www.georisques.gouv.fr
Détails du bien
  • Superficie (m²) 49000
  • Code postal 69150
Diagnostic de
performances énergétiques
DPE
GES
Ce bien est proposé par
JONES LANG LASALLE SAS - JLL
JONES LANG LASALLE SAS - JLL
Créer mon dossier de location Avec
Voir les biens de l'agence
40-42 Rue La Boetie
75008 Paris 08
01 4 0 55 1 5 15
valerie.moskal-deniau@jll.com
www.joneslanglasalle.fr
Nos outils
Nous contacter pour ce bien

* champs obligatoire

Les informations communiquées sont destinées à "La Chambre FNAIM du Grand Paris" éditrice de ce site. Vous bénéficiez d'un droit d'accès, de modification, de rectification et de suppression de vos données personnelles (Loi n°2004-575 du 21 juin 2004 pour la confiance dans l'économie numérique). Pour les exercer, adressez vous à l’adresse de l’Editeur.

Partager ce
bien
Partager ce
bien

* champs obligatoire

Les informations communiquées sont destinées à "La Chambre FNAIM du Grand Paris" éditrice de ce site. Vous bénéficiez d'un droit d'accès, de modification, de rectification et de suppression de vos données personnelles (Loi n°2004-575 du 21 juin 2004 pour la confiance dans l'économie numérique). Pour les exercer, adressez vous à l’adresse de l’Editeur.

Calculatrice financière
Mensualités :

* Champs obligatoires

Ces biens
peuvent vous intéresser

  • Location
    Local industriel
    69150 decines charpieu
    10 €
  • Location
    Local industriel
    69150 decines charpieu
    8 €
  • Location
    Local industriel
    69150 decines charpieu
    6 €
Fnaim-
  • Contact
  • Partenaires
  • IMMOCV
  • Liens utiles
EXTRANET Déposer un avis

© 2026 | Tous droits réservés |

  • Plan du site
  • Mentions légales
  • Partenaires
  • Contact
  • Contact DPO
27bis, avenue de Villiers, 75017 PARIS
Réalisé par

Comme beaucoup, notre site utilise les cookies

On aimerait vous accompagner pendant votre visite. En poursuivant, vous acceptez l'utilisation des cookies par ce site, afin de vous proposer des contenus adaptés et réaliser des statistiques !

Paramétrer

Cookies fonctionnelsCes cookies sont indispensables à la navigation sur le site, pour vous garantir un fonctionnement optimal. Ils ne peuvent donc pas être désactivés.

Statistiques de visitesPour améliorer votre expérience, on a besoin de savoir ce qui vous intéresse !
Les données récoltées sont anonymisées.

?

Google Analytics

Annonces personnaliséesOn garde le contact ? Ces cookies nous permettent de vous proposer des contenus publicitaires adaptés à vos centres d'intérêts.

?

Google Ads

?

Facebook Pixel

?

Youtube

En savoir plus