Sélection
0
ADHÉRER À LA FNAIM GRAND PARIS Extranet
Fnaim-75
  • Accueil
  • Qui sommes-nous
    • Qui sommes-nous?
    • Etudes économiques
    • Formations
    • Conseils juridiques
  • Vos outils
    • FNAIM Légal by Modelo
    • Hub FNAIM
    • Extranet FNAIM Grand Paris
    • Centrale d'achat
    • Baromètre des prix
    • Observatoire des loyers
    • ImmoCV
  • Partenaires
  • Actualités
    • Évènements
    • Vidéos
    • Presse
    • Revue professions immobilières
    • Lettre votre patrimoine
    • Observatoires
    • Actualités juridiques
    • Nouveaux adhérents
  • Trouver une agence
  • Carte d'attractivité
VotreRecherche
Dans un rayon de
Budget
Entre € et €
Entre
et
Min. €
Max. €
Surface
Entre m2 et m2
Min. m2
Max. m2
Pièces
Entre pièces et pièces
Min. pièces
Max. pièces
  1. Accueil
  2. Paris 18
  3. Vente
  4. Appartement
  5. 2 Pièces - 33m²
< Retour

Appartement
2 Pièces 33 m²

Paris 18 - 75018

265 000 €
Descriptif du bien
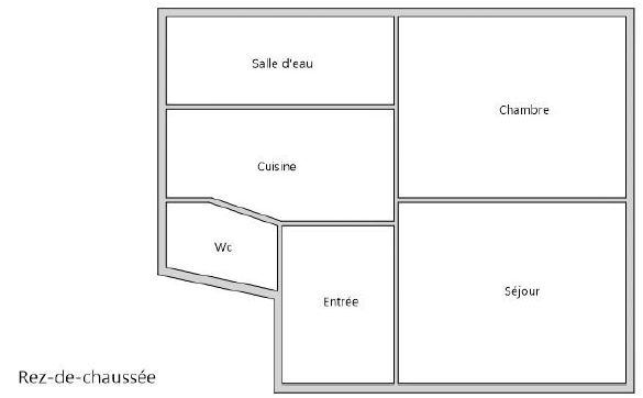
Rue des Amiraux / 75018 Paris Au rez de chaussée d'une rue peu passante et particulièrement calme, votre agence Orpi vous présente en exclusivité, ce bel appartement de 32.25m² loi carrez composé d'une entrée donnant sur le séjour, une chambre, salle d'eau avec WC et une cuisine indépendante équipée et aménagée. En très bon état, celui ci est prêt à vous accueillir pour un pied à terre ou 1er achat. Une cave complète ce descriptif. Charges maîtrisées : 123€/mois. Référence agence : 4202
Détails du bien
  • Superficie (m²) 33
  • Code postal 75018
  • Nombre de chambre(s) 1
  • Nombre de pièces 2
Diagnostic de
performances énergétiques
DPE
GES
Ce bien est proposé par
ORPI IMMO CONSEILS PARIS
ORPI IMMO CONSEILS PARIS
Voir les biens de l'agence
33 Boulevard De Charonne
75011 Paris 11
01 55 25 52 00
immoconseilsparis@orpi.com
WWW.ORPI.COM/IMMOCONSEILSPARIS
Nos outils
Nous contacter pour ce bien

* champs obligatoire

Les informations communiquées sont destinées à "La Chambre FNAIM du Grand Paris" éditrice de ce site. Vous bénéficiez d'un droit d'accès, de modification, de rectification et de suppression de vos données personnelles (Loi n°2004-575 du 21 juin 2004 pour la confiance dans l'économie numérique). Pour les exercer, adressez vous à l’adresse de l’Editeur.

Partager ce
bien
Partager ce
bien

* champs obligatoire

Les informations communiquées sont destinées à "La Chambre FNAIM du Grand Paris" éditrice de ce site. Vous bénéficiez d'un droit d'accès, de modification, de rectification et de suppression de vos données personnelles (Loi n°2004-575 du 21 juin 2004 pour la confiance dans l'économie numérique). Pour les exercer, adressez vous à l’adresse de l’Editeur.

Calculatrice financière
Mensualités :

* Champs obligatoires

Ces biens
peuvent vous intéresser

  • Vente
    Appartement
    75018 paris 18
    670 000 €
  • Vente
    Appartement
    75018 paris 18
    525 000 €
  • Vente
    Appartement
    75018 paris 18
    460 000 €
Fnaim-
  • Contact
  • Partenaires
  • IMMOCV
  • Liens utiles
EXTRANET Déposer un avis

© 2026 | Tous droits réservés |

  • Plan du site
  • Mentions légales
  • Partenaires
  • Contact
  • Contact DPO
27bis, avenue de Villiers, 75017 PARIS
Réalisé par

Comme beaucoup, notre site utilise les cookies

On aimerait vous accompagner pendant votre visite. En poursuivant, vous acceptez l'utilisation des cookies par ce site, afin de vous proposer des contenus adaptés et réaliser des statistiques !

Paramétrer

Cookies fonctionnelsCes cookies sont indispensables à la navigation sur le site, pour vous garantir un fonctionnement optimal. Ils ne peuvent donc pas être désactivés.

Statistiques de visitesPour améliorer votre expérience, on a besoin de savoir ce qui vous intéresse !
Les données récoltées sont anonymisées.

?

Google Analytics

Annonces personnaliséesOn garde le contact ? Ces cookies nous permettent de vous proposer des contenus publicitaires adaptés à vos centres d'intérêts.

?

Google Ads

?

Facebook Pixel

?

Youtube

En savoir plus