Sélection
0
ADHÉRER À LA FNAIM GRAND PARIS Extranet
Fnaim-75
  • Accueil
  • Qui sommes-nous
    • Qui sommes-nous?
    • Etudes économiques
    • Formations
    • Conseils juridiques
  • Vos outils
    • FNAIM Légal by Modelo
    • Hub FNAIM
    • Extranet FNAIM Grand Paris
    • Centrale d'achat
    • Baromètre des prix
    • Observatoire des loyers
    • ImmoCV
  • Partenaires
  • Actualités
    • Évènements
    • Vidéos
    • Presse
    • Revue professions immobilières
    • Lettre votre patrimoine
    • Observatoires
    • Actualités juridiques
    • Nouveaux adhérents
  • Trouver une agence
  • Carte d'attractivité
VotreRecherche
Dans un rayon de
Budget
Entre € et €
Entre
et
Min. €
Max. €
Surface
Entre m2 et m2
Min. m2
Max. m2
Pièces
Entre pièces et pièces
Min. pièces
Max. pièces
  1. Accueil
  2. Paris 18
  3. Vente
  4. Appartement
  5. 2 Pièces - 61m²
< Retour

Appartement
2 Pièces 61 m²

Paris 18 - 75018

460 000 €
Descriptif du bien
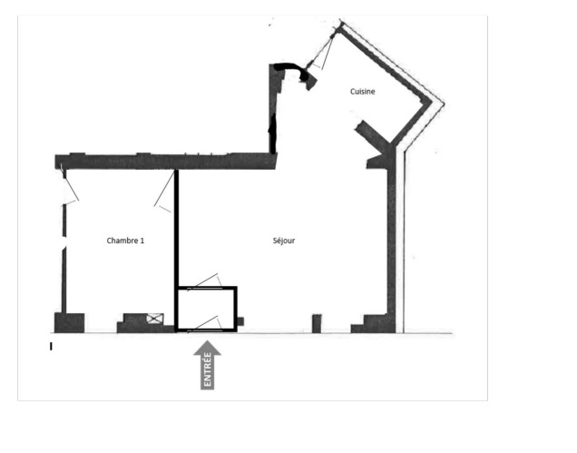
A proximité immédiate du métro Simplon et des commerces, Engel & Völkers vous présente cet appartement complétement refait de 61m² habitable, (41m² carrez) , au coeur de l'esprit village de ce quartier vivant. Appartement esprit Loft, Atelier d'artiste, Profession libérale, Studio de musique. Chacun pourra trouver la destination de ce bien unique et atypique en profitant de beaux volumes et d'une belle hauteur sous plafond. Entrée indépendante donnant sur une grande pièce de vie avec cuisine ouverte, wc et accès à une courette privative. Une autre pièce pouvant servir de bureau ou de chambre vient compléter cette surface. Des carreaux de verres, des briques et des pierres apparentes viennent donner du charme à ce bel espace. Un escalier menant en souplex à une grande chambre et une salle d'eau avec wc entièrement refait viennent compléter ce bien. DPE : G / 657 GES : C / 22 Logement à consommation énergétique excessive : G Estimation des coûts annuels d'énergie du logement : 1650€ - 2280€ Copropriété de 30 lots Charges annuelles moyennes : 1343€ Procédure en cours : non Honoraires de transaction TTC à la charge du vendeur Les informations sur les risques auxquels ce bien est exposé sont disponibles sur le site Géorisques : www.georisques.gouv.fr Les images dans l'Exposé peuvent avoir été optimisées ou adaptées à l'aide de l'IA à des fins d'illustration. A quelques pas du métro Simplon, dans une rue calme et proche de te toute commodités
Détails du bien
  • Superficie (m²) 61
  • Code postal 75018
  • Nombre de chambre(s) 1
  • Nombre de pièces 2
  • Nb de salle de bain 1
Diagnostic de
performances énergétiques
DPE
GES
Ce bien est proposé par
Engel & Völkers
Engel & Völkers
Voir les biens de l'agence
170 Rue Du Faubourg Saint-Honore
75008 Paris 08
01 4 5 64 3 0 30
paris.leads@engelvoelkers.com
www.engelvoelkers.com/fr
Nos outils
Nous contacter pour ce bien

* champs obligatoire

Les informations communiquées sont destinées à "La Chambre FNAIM du Grand Paris" éditrice de ce site. Vous bénéficiez d'un droit d'accès, de modification, de rectification et de suppression de vos données personnelles (Loi n°2004-575 du 21 juin 2004 pour la confiance dans l'économie numérique). Pour les exercer, adressez vous à l’adresse de l’Editeur.

Partager ce
bien
Partager ce
bien

* champs obligatoire

Les informations communiquées sont destinées à "La Chambre FNAIM du Grand Paris" éditrice de ce site. Vous bénéficiez d'un droit d'accès, de modification, de rectification et de suppression de vos données personnelles (Loi n°2004-575 du 21 juin 2004 pour la confiance dans l'économie numérique). Pour les exercer, adressez vous à l’adresse de l’Editeur.

Calculatrice financière
Mensualités :

* Champs obligatoires

Ces biens
peuvent vous intéresser

  • Vente
    Appartement
    75018 paris 18
    253 200 €
  • Vente
    Appartement
    75018 paris 18
    525 000 €
  • Vente
    Appartement
    75018 paris 18
    1 207 500 €
Fnaim-
  • Contact
  • Partenaires
  • IMMOCV
  • Liens utiles
EXTRANET Déposer un avis

© 2026 | Tous droits réservés |

  • Plan du site
  • Mentions légales
  • Partenaires
  • Contact
  • Contact DPO
27bis, avenue de Villiers, 75017 PARIS
Réalisé par

Comme beaucoup, notre site utilise les cookies

On aimerait vous accompagner pendant votre visite. En poursuivant, vous acceptez l'utilisation des cookies par ce site, afin de vous proposer des contenus adaptés et réaliser des statistiques !

Paramétrer

Cookies fonctionnelsCes cookies sont indispensables à la navigation sur le site, pour vous garantir un fonctionnement optimal. Ils ne peuvent donc pas être désactivés.

Statistiques de visitesPour améliorer votre expérience, on a besoin de savoir ce qui vous intéresse !
Les données récoltées sont anonymisées.

?

Google Analytics

Annonces personnaliséesOn garde le contact ? Ces cookies nous permettent de vous proposer des contenus publicitaires adaptés à vos centres d'intérêts.

?

Google Ads

?

Facebook Pixel

?

Youtube

En savoir plus