Sélection
0
ADHÉRER À LA FNAIM GRAND PARIS Extranet
Fnaim-75
  • Accueil
  • Qui sommes-nous
    • Qui sommes-nous?
    • Etudes économiques
    • Formations
    • Conseils juridiques
  • Vos outils
    • FNAIM Légal by Modelo
    • Hub FNAIM
    • Extranet FNAIM Grand Paris
    • Centrale d'achat
    • Baromètre des prix
    • Observatoire des loyers
    • ImmoCV
  • Partenaires
  • Actualités
    • Évènements
    • Vidéos
    • Presse
    • Revue professions immobilières
    • Lettre votre patrimoine
    • Observatoires
    • Actualités juridiques
    • Nouveaux adhérents
  • Trouver une agence
  • Carte d'attractivité
VotreRecherche
Dans un rayon de
Budget
Entre € et €
Entre
et
Min. €
Max. €
Surface
Entre m2 et m2
Min. m2
Max. m2
Pièces
Entre pièces et pièces
Min. pièces
Max. pièces
  1. Accueil
  2. St Cyr Sous Dourdan
  3. 5 Pièces - 130m²
< Retour

Maison
5 Pièces 130 m²

St Cyr Sous Dourdan - 91410

305 000 €
Descriptif du bien
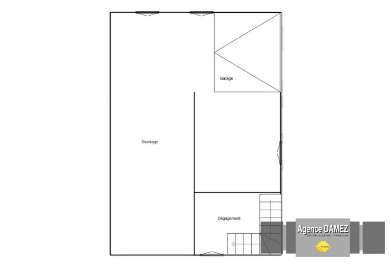
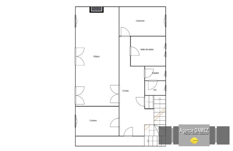
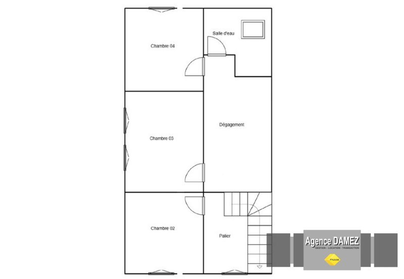
Dourdan 5 km - maison de 5 pièces -130 m² - sous-sol - jardin 1800 m² L'Agence DAMEZ Dourdan vous propose cette maison familiale traditionnelle pleine de charme. Idéale pour une vie de famille, cette propriété dispose d'un grand sous-sol et de 4 chambres spacieuses, dont un mode de vie de plain-pied. Vous serez séduit par le beau séjour lumineux avec cheminée, qui s'ouvre sur une belle terrasse ensoleillée. La maison comprend également deux salles de bains. Cette propriété offre un espace de vie généreux et fonctionnel. Située dans un environnement privilégié et protégé, elle vous assure tranquillité et nature. Une opportunité rare à saisir. Logement à consommation énergétique excessive classe G.
Détails du bien
  • Superficie (m²) 130
  • Code postal 91410
  • Nombre de chambre(s) 4
  • Nombre de pièces 5
  • Nb de salle de bain 1
Diagnostic de
performances énergétiques
DPE
GES
Ce bien est proposé par
AGENCE DAMEZ
AGENCE DAMEZ
Voir les biens de l'agence
15 Rue Debertrand
91410 Dourdan
01 6 4 59 5 1 63
agencedamez@orange.fr
www.agencedamezdourdan.immo
Nos outils
Nous contacter pour ce bien

* champs obligatoire

Les informations communiquées sont destinées à "La Chambre FNAIM du Grand Paris" éditrice de ce site. Vous bénéficiez d'un droit d'accès, de modification, de rectification et de suppression de vos données personnelles (Loi n°2004-575 du 21 juin 2004 pour la confiance dans l'économie numérique). Pour les exercer, adressez vous à l’adresse de l’Editeur.

Partager ce
bien
Partager ce
bien

* champs obligatoire

Les informations communiquées sont destinées à "La Chambre FNAIM du Grand Paris" éditrice de ce site. Vous bénéficiez d'un droit d'accès, de modification, de rectification et de suppression de vos données personnelles (Loi n°2004-575 du 21 juin 2004 pour la confiance dans l'économie numérique). Pour les exercer, adressez vous à l’adresse de l’Editeur.

Calculatrice financière
Mensualités :

* Champs obligatoires

Ces biens
peuvent vous intéresser

  • Vente
    Maison
    91410 st cyr sous dourdan
    370 000 €
  • Vente
    Maison
    91410 st cyr sous dourdan
    315 000 €
  • Vente
    Maison
    91410 st cyr sous dourdan
    795 000 €
Fnaim-
  • Contact
  • Partenaires
  • IMMOCV
  • Liens utiles
EXTRANET Déposer un avis

© 2026 | Tous droits réservés |

  • Plan du site
  • Mentions légales
  • Partenaires
  • Contact
  • Contact DPO
27bis, avenue de Villiers, 75017 PARIS
Réalisé par

Comme beaucoup, notre site utilise les cookies

On aimerait vous accompagner pendant votre visite. En poursuivant, vous acceptez l'utilisation des cookies par ce site, afin de vous proposer des contenus adaptés et réaliser des statistiques !

Paramétrer

Cookies fonctionnelsCes cookies sont indispensables à la navigation sur le site, pour vous garantir un fonctionnement optimal. Ils ne peuvent donc pas être désactivés.

Statistiques de visitesPour améliorer votre expérience, on a besoin de savoir ce qui vous intéresse !
Les données récoltées sont anonymisées.

?

Google Analytics

Annonces personnaliséesOn garde le contact ? Ces cookies nous permettent de vous proposer des contenus publicitaires adaptés à vos centres d'intérêts.

?

Google Ads

?

Facebook Pixel

?

Youtube

En savoir plus