Sélection
0
ADHÉRER À LA FNAIM GRAND PARIS Extranet
Fnaim-75
  • Accueil
  • Qui sommes-nous
    • Qui sommes-nous?
    • Etudes économiques
    • Formations
    • Conseils juridiques
  • Vos outils
    • FNAIM Légal by Modelo
    • Hub FNAIM
    • Extranet FNAIM Grand Paris
    • Centrale d'achat
    • Baromètre des prix
    • Observatoire des loyers
    • ImmoCV
  • Partenaires
  • Actualités
    • Évènements
    • Vidéos
    • Presse
    • Revue professions immobilières
    • Lettre votre patrimoine
    • Observatoires
    • Actualités juridiques
    • Nouveaux adhérents
  • Trouver une agence
  • Carte d'attractivité
VotreRecherche
Dans un rayon de
Budget
Entre € et €
Entre
et
Min. €
Max. €
Surface
Entre m2 et m2
Min. m2
Max. m2
Pièces
Entre pièces et pièces
Min. pièces
Max. pièces
  1. Accueil
  2. Paris 19
  3. Vente
  4. Maison
  5. 30 Pièces - 1131m²
< Retour

Maison
30 Pièces 1131 m²

Paris 19 - 75019

7 000 000 €
Descriptif du bien
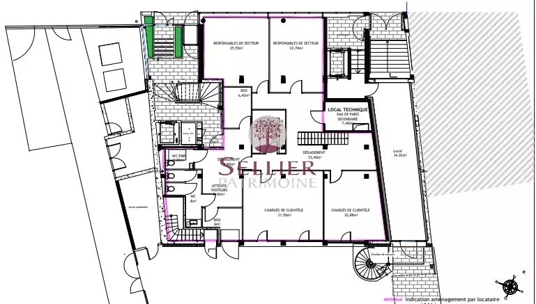
Canal de l’Ourcq / La Villette – Un actif tertiaire "Prime" sans copropriété avec fort levier de valorisation. Situé dans l’un des quartiers les plus dynamiques du Grand Paris, cet immeuble indépendant de 2019 constitue une opportunité d'investissement rare. Alliant revenus garantis par des locataires institutionnels et potentiel de création de surface immédiat, cet actif répond aux exigences des Foncières, Family Offices et Utilisateurs-Acquéreurs. 1. PERFORMANCE FINANCIÈRE & SÉCURITÉ LOCATIVE Revenus Annuels : 424 991 € TTC. Rendement Immédiat : 5,33 %. Bail Sécurisé : Engagement ferme jusqu’en 2029 avec des locataires institutionnels de premier rang. Indépendance Totale : Absence de copropriété, maîtrise complète des charges et de la gestion technique. 2. SYNTHÈSE DES SURFACES (1 500 m² au total) L'immeuble développe 1 131 m² SUBL répartis sur des plateaux traversants et ultra-modulaires : Rez-de-Chaussée (220 m²) : Accueil monumental, visibilité rue, idéal pour un pôle santé ou showroom. Plateaux Tertiaires (770 m²) : Espaces baignés de lumière, climatisés, configurables en open-space ou bureaux cloisonnés. Sous-sol Exceptionnel (240 m²) : Hauteur...
Détails du bien
  • Superficie (m²) 1131
  • Code postal 75019
  • Nombre de pièces 30
Diagnostic de
performances énergétiques
DPE
GES
Ce bien est proposé par
SELLIER PATRIMOINE
SELLIER PATRIMOINE
Voir les biens de l'agence
11 Rue Des Fosses Saint Marcel
75005 Paris 05
06 83 91 21 0
dsellier@sellier-patrimoine.com
sellier-patrimoine.com
Nos outils
Nous contacter pour ce bien

* champs obligatoire

Les informations communiquées sont destinées à "La Chambre FNAIM du Grand Paris" éditrice de ce site. Vous bénéficiez d'un droit d'accès, de modification, de rectification et de suppression de vos données personnelles (Loi n°2004-575 du 21 juin 2004 pour la confiance dans l'économie numérique). Pour les exercer, adressez vous à l’adresse de l’Editeur.

Partager ce
bien
Partager ce
bien

* champs obligatoire

Les informations communiquées sont destinées à "La Chambre FNAIM du Grand Paris" éditrice de ce site. Vous bénéficiez d'un droit d'accès, de modification, de rectification et de suppression de vos données personnelles (Loi n°2004-575 du 21 juin 2004 pour la confiance dans l'économie numérique). Pour les exercer, adressez vous à l’adresse de l’Editeur.

Calculatrice financière
Mensualités :

* Champs obligatoires

Ces biens
peuvent vous intéresser

  • Vente
    Maison
    75019 paris 19
    1 365 000 €
  • Vente
    Maison
    75020 paris 20
    1 100 000 €
  • Vente
    Maison
    75020 paris 20
    2 785 000 €
Fnaim-
  • Contact
  • Partenaires
  • IMMOCV
  • Liens utiles
EXTRANET Déposer un avis

© 2026 | Tous droits réservés |

  • Plan du site
  • Mentions légales
  • Partenaires
  • Contact
  • Contact DPO
27bis, avenue de Villiers, 75017 PARIS
Réalisé par

Comme beaucoup, notre site utilise les cookies

On aimerait vous accompagner pendant votre visite. En poursuivant, vous acceptez l'utilisation des cookies par ce site, afin de vous proposer des contenus adaptés et réaliser des statistiques !

Paramétrer

Cookies fonctionnelsCes cookies sont indispensables à la navigation sur le site, pour vous garantir un fonctionnement optimal. Ils ne peuvent donc pas être désactivés.

Statistiques de visitesPour améliorer votre expérience, on a besoin de savoir ce qui vous intéresse !
Les données récoltées sont anonymisées.

?

Google Analytics

Annonces personnaliséesOn garde le contact ? Ces cookies nous permettent de vous proposer des contenus publicitaires adaptés à vos centres d'intérêts.

?

Google Ads

?

Facebook Pixel

?

Youtube

En savoir plus